EasyManua.ls Logo

Ferlux C17 SERIGR - Page 19

Ferlux C17 SERIGR
Print Icon
To Next Page IconTo Next Page
To Next Page IconTo Next Page
To Previous Page IconTo Previous Page
To Previous Page IconTo Previous Page
Loading...
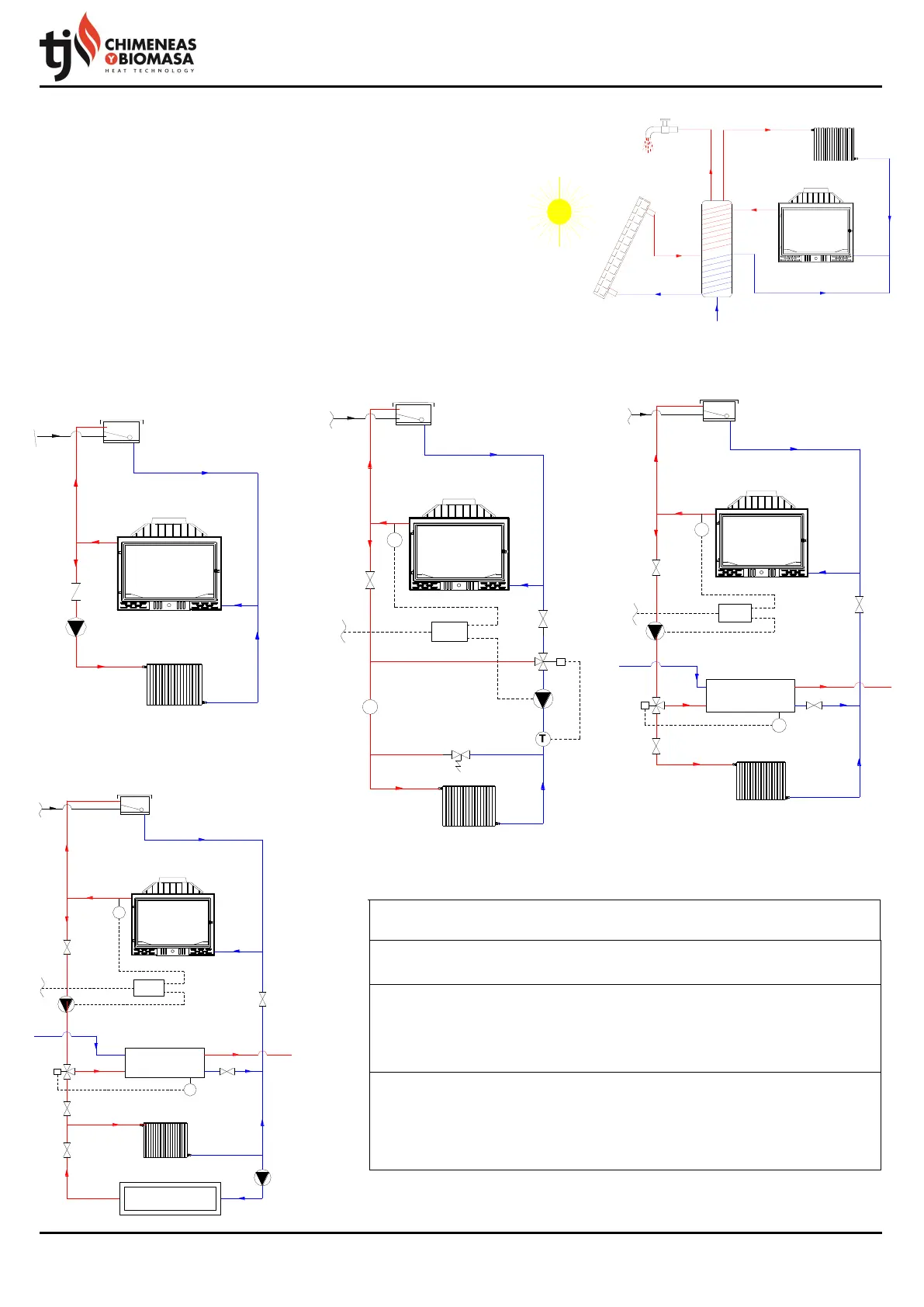
INFORMACIÓN TÉCNICA / INFORMAÇÃO TÉCNICA / TECHNICAL INFORMATION
19
(EU =
Control Electrónico / Controlo Electrónico / Electronic unit control)
A
Instalación simple / Instalação simples / Simple installation
B
Instalación con control electrónico y válvula de 3 vías / Instalação com válvula de
3 vias electrónica / Installation with electronic control and 3-way valve
C
Instalación con control electrónico y válvula de 3 vías, para producción de ACS /
Instalação com válvula de 3 vias electrónica para aquecimento de águas quentes
sanitárias / Installation with electronic control and 3-way valve for domestic hot
water production
D
Instalación con control electrónico y válvula de 3 vías, para producción de ACS
con una caldera o sistema auxiliar / Instalação com válvula de 3 vias electrónica
para aquecimento de águas quentes sanitárias com caldeira ou outro sistema
auxiliar./ Installation with electronic control and 3-way valve for domestic hot water
production with a boiler or auxiliary sistem.
En FERLUX somos conscientes de la importancia del desarrollo sostenible y del ahorro
energético, por lo que sugerimos la instalación de un sistema de calefacción que integre energías
renovables como alternativa a la utilización de combustibles fósiles.
A continuación se muestran algunos ejemplos de instalaciones.
Na FERLUX estamos conscientes da importância do desenvolvimento sustentavel e da poupança
energética, pelo que sugerimos a instalação de um sistema de aquecimento que integre energias
renováveis, como alternativa à utilização do combustiveis fosseis. A anexa-se alguns exemplos de
instalações
In FERLUX we understand the importance of sustainable development and energy saving, so we
suggest installing a heating system that will integrate renewable energy as an alternative to fossil
fuels.
Below are some examples of installations.
Ejemplos de instalaciones con vaso de expansión abierto - Exemplos de Instalação com vaso de expansão aberto - Installation exsamples with open expansion tank
A
COLD
HOT
E U
T
T
B
COLD
HOT
INTERCAMBIADOR
AFS
ACS
T
T
E U
C
COLD
HOT
INTERCAMBIADOR
CALDERA
E U
T
ACS
AFS
T
D
COLD
HOT

Related product manuals