EasyManua.ls Logo

Fermax SKYLINE Series - Internal Wiring Diagram

Fermax SKYLINE Series
26 pages
To Next Page IconTo Next Page
To Next Page IconTo Next Page
To Previous Page IconTo Previous Page
To Previous Page IconTo Previous Page
Loading...
Pag 14
BUS2 Panels
BUS2 Panels
JP3
JP2
CN1
ARRIBA/UP
HAUT/OBEN
CN2
REF.7371
REF.7367
REF.7371
REF.7367
CN1
ARRIBA/UP
INPUT
INPUT
OUTPUT
ON
D
C
B
A
E
HAUT/OBEN
CN2
OUTPUT
MIC
NC NO C
-
BS
BUS-2
EXITEXIT
BB
+12
S
JP3
JP2
PACK EXTENSION
CN1
CN2
LEDS ON
SLAVE
MASTER
LEDS OFF
TARJETERO
CARD HOLDER
CN4
CN3
AUDIO
BUS-2 VERSTÄRKER
AMPLIFICATEUR BUS-2
BUS-2 AMPLIFIER
AMPLIFICADOR BUS-2
PROG
TEST
C
NO
NC
STATUS LEDS
LEDS ESTADO
VERSION :
LANGUAGE
IDIOMA
10
PAN & TILT
JP3 JP2
CN4
CN3
SW1
CN1
CN2
MIC
MÓDULO PULSADOR
PUSH-BUTTON MODULE
MODULE BOUTON-POUSSOIR
TASTEMODUL
MÓDULO PULSADOR
PUSH-BUTTON MODULE
MODULE BOUTON-POUSSOIR
TASTEMODUL
MIC
E
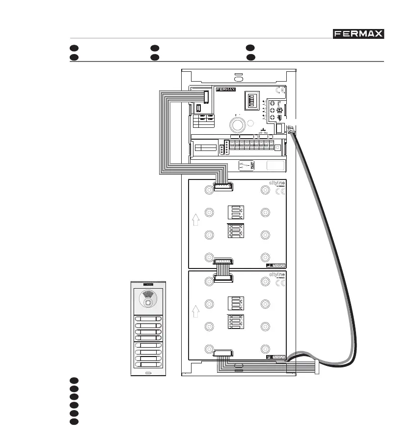
PRECABLEADO
INTERNAL WIRING
F
PRECÂBLAGE
D
VERKABELUNG
PRE-CABLAGEM
IT
PRECABLAGGIO
E
Los Pulsadores de la Placas Modulares, no requieren módulo de extensión de llamadas.
EN
The modular panel buttons do not require call extension modules.
F
Les Boutons-poussoirs des Platines Modulaires n’ont pas besoin de module d’extension d’appels.
D
Die Tasten der modularen Türstationen benötigen kein Ruferweiterungsmodul.
P
Os Botões das Placas Modulares não requerem módulo de extensão de chamadas.
IT
I pulsanti dei posti esterni non richiedono del modulo di estenzione della chiamata.

Related product manuals