EasyManua.ls Logo

Fermax SKYLINE Series - Door Lock Release Wiring; 12 Vac Lock Release Wiring; 12 Vdc Lock Release Wiring

Fermax SKYLINE Series
26 pages
To Next Page IconTo Next Page
To Next Page IconTo Next Page
To Previous Page IconTo Previous Page
To Previous Page IconTo Previous Page
Loading...
Pag 20
BUS2 Panels
BUS2 Panels
E
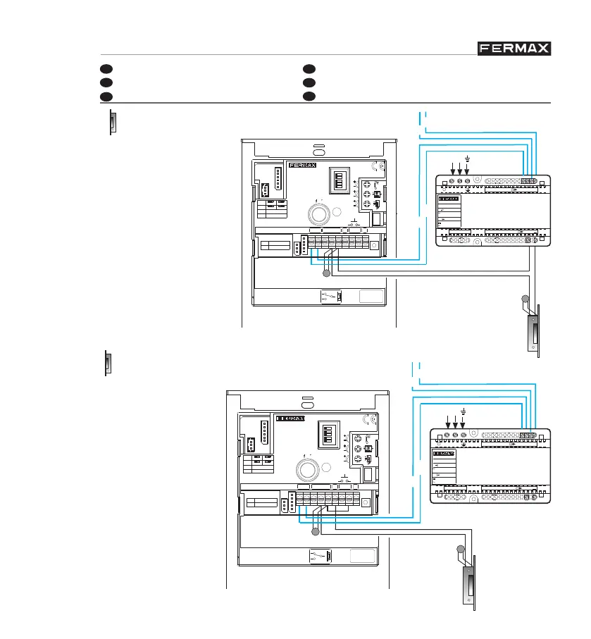
CONEXIÓN ABREPUERTAS
EN
DOOR LOCK-RELEASE CONNECTION
F
RACCORDEMENT GÂCHE
D
ANSCHLUSS TÜRÖFFNER
P
LIGAÇÃO DO TRINCO
IT
CONNESSIONE APRIPORTA
12 Vac
12 Vdc
JP3
JP2
CN1
CN2
24 Vdc + 12 Vac
240V
~
~
~~
12 Vac
OUTPUT
INPUT
100-240 V ; 1,2A
50-60 Hz
24 V ; 2 A
12 V ; 0,75A
[B B][B B]
Vac
12Vac
B
B
B
B
ON
D
C
B
A
E
MIC
NC NO C
-
BS
BUS-2
EXITEXIT
BB
+12
S
JP3
JP2
PACK EXTENSION
CN1
CN2
LEDS ON
SLAVE
MASTER
LEDS OFF
TARJETERO
CARD HOLDER
CN4
CN3
AUDIO
BUS-2 VERSTÄRKER
AMPLIFICATEUR BUS-2
BUS-2 AMPLIFIER
AMPLIFICADOR BUS-2
PROG
TEST
C
NO
NC
STATUS LEDS
LEDS ESTADO
VERSION :
LANGUAGE
IDIOMA
10
PAN & TILT
JP3 JP2
CN4
CN3
SW1
MIC
VARISTOR
VARISTOR
12Vdc
JP3
JP2
CN1
CN2
24 Vdc
240V
~
~
~~
12 Vac
OUTPUT
INPUT
100-240 V ; 1,2A
50-60 Hz
24 V ; 2 A
12 V ; 0,75A
[B B][B B]
Vac
B
B
B
B
ON
D
C
B
A
E
MIC
NC NO C
-
BS
BUS-2
EXITEXIT
BB
+12
S
JP3
JP2
PACK EXTENSION
CN1
CN2
LEDS ON
SLAVE
MASTER
LEDS OFF
TARJETERO
CARD HOLDER
CN4
CN3
AUDIO
BUS-2 VERSTÄRKER
AMPLIFICATEUR BUS-2
BUS-2 AMPLIFIER
AMPLIFICADOR BUS-2
PROG
TEST
C
NO
NC
STATUS LEDS
LEDS ESTADO
VERSION :
LANGUAGE
IDIOMA
10
PAN & TILT
JP3 JP2
CN4
CN3
SW1
MIC
VARISTOR
VARISTOR

Related product manuals