EasyManua.ls Logo

Fermax VDS Cityline - Page 18

Fermax VDS Cityline
37 pages
Print Icon
To Next Page IconTo Next Page
To Next Page IconTo Next Page
To Previous Page IconTo Previous Page
To Previous Page IconTo Previous Page
Loading...
Pag 18
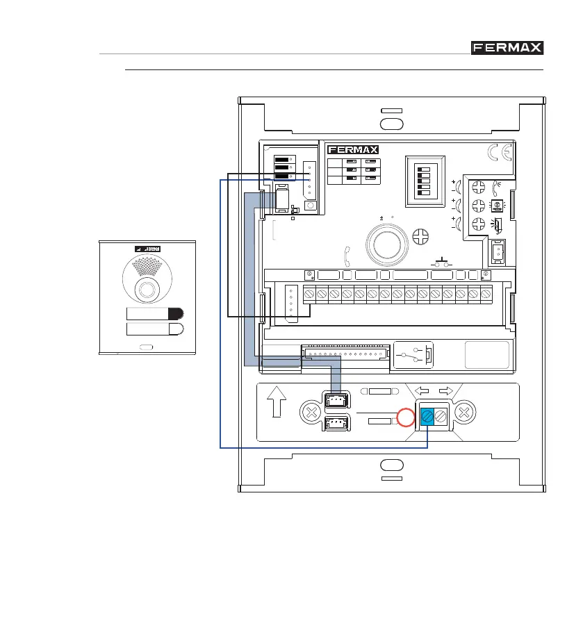
VDS Panels
VDS Panels
C )
CP
+
-
VDS
PACK EXTENSION
CN1
AMPLIFICATEUR - AMPLIFIER
AMPLIFICADOR - VERSTÄRKER
PROG
SW1
CN3
STATUS
EXIT
NO
NC
C
JP3
JP2
LANGUAGE
IDIOMA
L
+
-
M
V
+12
C
NCNO
-
BS
S
CT
ALIMENTACION
POWER SUPPLY
18 Vdc
-+
JP4
LEDS ON
SLAVE
MASTER
LEDS OFF
10
PAN & TILT
18V
DC
MONITOR TEST
CN7
CN1
DL2
CN2
SW1
CN3
MIC
AUDIO
JP2
JP3
JP4
CT OUT CT IN
B
D
A
C
E
ON
CAM
DL2
CN2
TARJETERO
TAG HOLDER
VERSION
:
2
ARRIBA
UP
1
2

Related product manuals