EasyManua.ls Logo

FERMOD KIT 5010 - Wiring; Motor and Encoder Connection

Default Icon
24 pages
Print Icon
To Next Page IconTo Next Page
To Next Page IconTo Next Page
To Previous Page IconTo Previous Page
To Previous Page IconTo Previous Page
Loading...
Kit5010ExpSécu_Elec-A
4
i
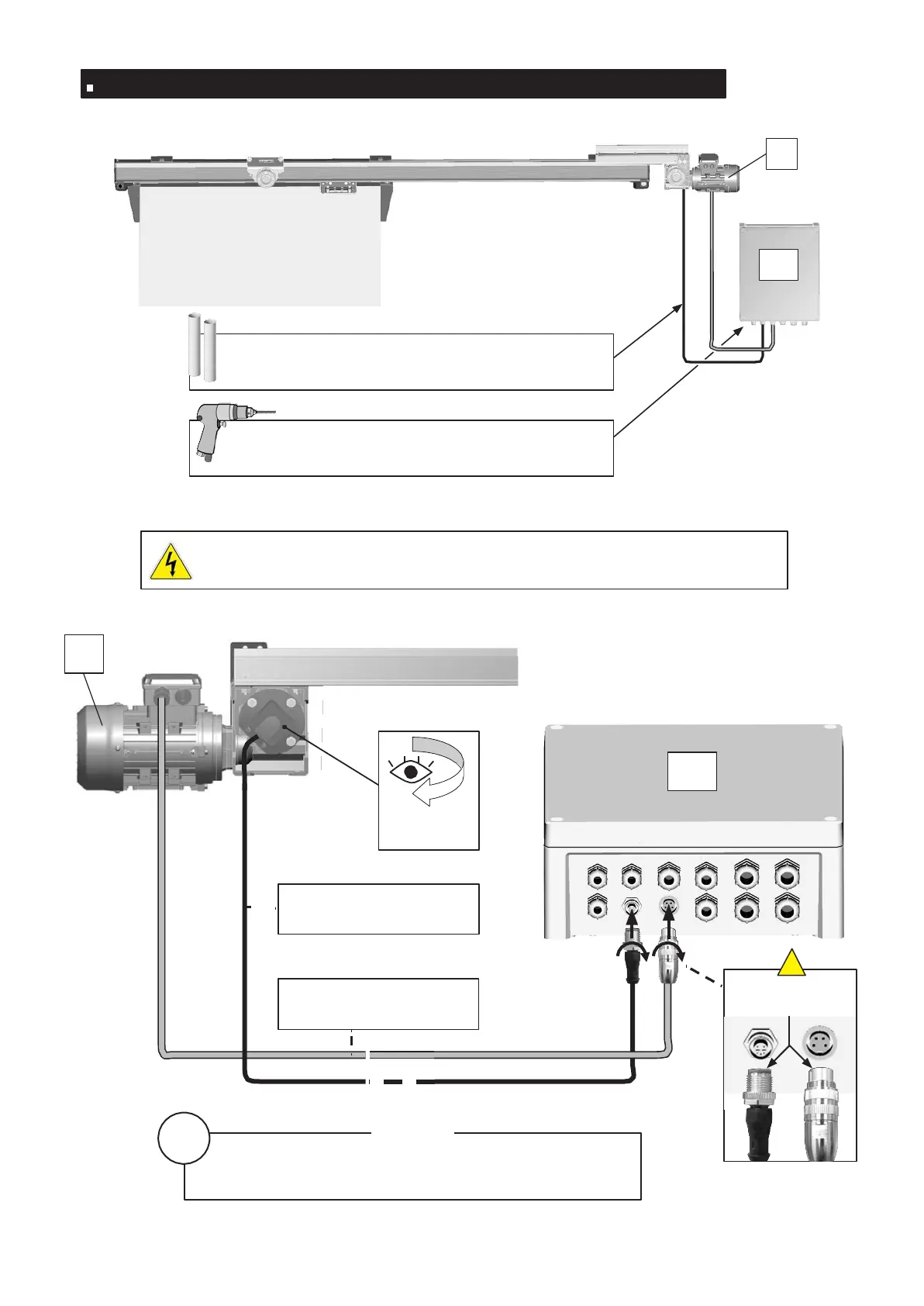
Tilkobling motor og omkoder / Motor and encoder connection
M6
M10
Bruk et rør på minst Ø 20 mm for kablene
Use tube Ø 20mm mini to pass the cables
Bor et hull på minst Ø 20 mm for kontaktene
Drilling Ø 20mm mini to pass the connectors
Strømmen må absolutt brytes før motoren frakobles
Absolutely cut the power supply before disconnecting the motor
M6
M10
Sett bakfra
Back view
Omkoder (svart kabel/2m)
Encoder (black cable/2m)
Motor (grå kabel/2m)
Motor (grey cable/2m)
Feilsikre hull
Oriented slots
EKSTRAUTSTYR /
OPTION
Skjøteledning 5m (maks 2 skjøteledninger etter hverandre)
Extension cable 5m (maxi 2 extensions endwise)

Other manuals for FERMOD KIT 5010