EasyManua.ls Logo

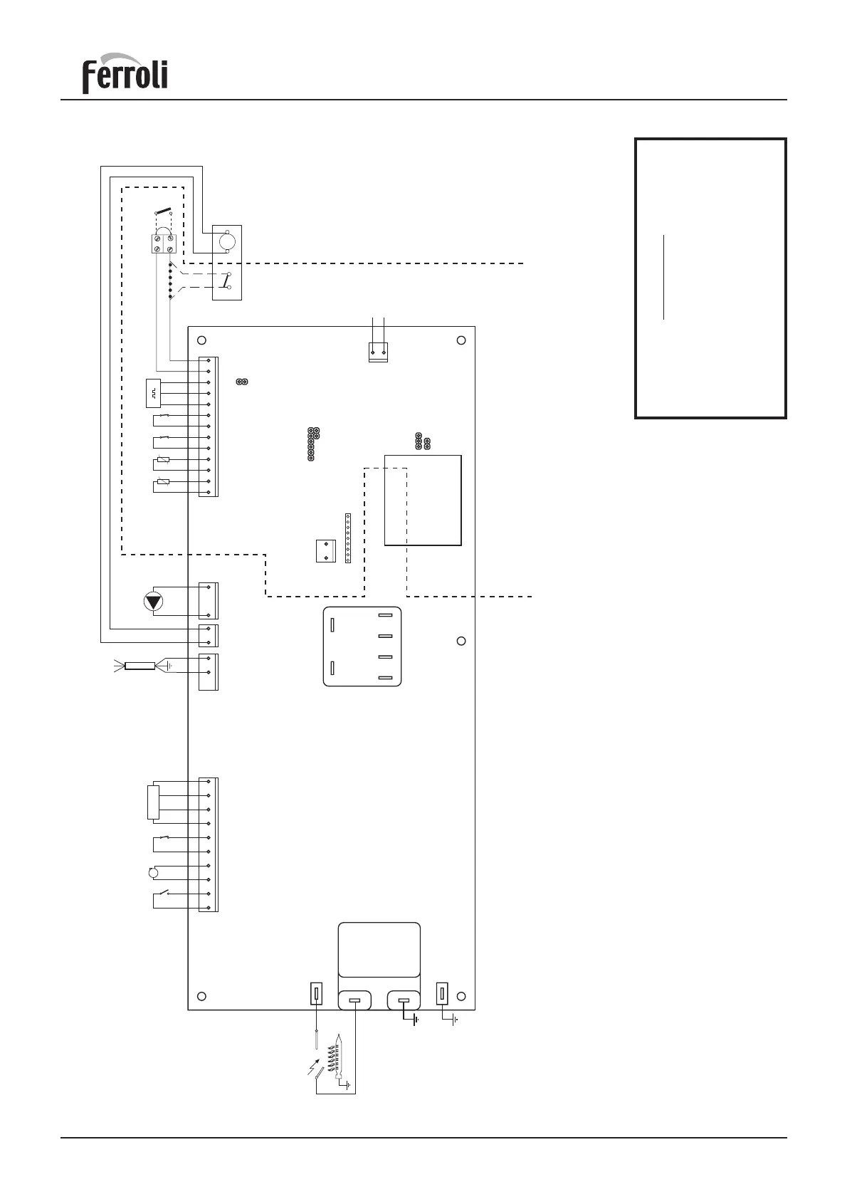
Ferroli F24 - 9.02 General wiring diagram

Ferroli F24
52 pages
Print Icon
To Next Page IconTo Next Page
To Next Page IconTo Next Page
To Previous Page IconTo Previous Page
To Previous Page IconTo Previous Page
Loading...
Ferroli F24
44
Key
16 Fan
32 Central heating pump
34 Central heating flow temperature sensor
42 Domestic hot water flow temperature sensor
43 Air pressure switch
44 Gas valve
49 Safety thermostat
50 Central heating limit thermostat
62 Time clock
Key
BR Brown
BLUE Blue
BL Black
W White
O Orange
G Green
R Red
V Violet
IMPORTANT
USE A ROOM THERMOSTAT (24 V)
WITHOUT VOLTAGE TO THE CONTACTS.
CONNECTING 230 V TO THE ROOM
THERMOSTAT TERMINALS WILL
IRREPARABLY DAMAGE THE
ELECTRONIC BOARD.
72 Room thermostat
81 Ignition electrode
82 Sensor electrode
98 Off/On/Reset switch
114 Low water pressure switch
136 Flow meter
9.02 General wiring diagram
X6
X1
X2 X3
X4
12121312345678910 12345678910111213
21
X5
TEST
-+
X12
12
123456789
X10
W
O
V
R
X8
X7
81 82
MF03F
JP02
JP01
JP03
Nat/LPG
X11
230V 24V
230V
24V
3
5
2
1
M
62
72
4
3
BR
Blue
BR
Blue
BR
Blue
MV1
MV2
MV3
MV4
Blue
BR
Blue
BR
BR
Blue
R
R
Blue
Blue
O
O
Blue
BR
G
W
R
BL
BL
BL
Y/G
Y/G
BL
98
136501144234
32
44491643
230V
50Hz
Fig. 42

Other manuals for Ferroli F24

Related product manuals