EasyManua.ls Logo

Fiem SMART - Schaltplan; Schema Elettrico

Default Icon
Print Icon
To Next Page IconTo Next Page
To Next Page IconTo Next Page
To Previous Page IconTo Previous Page
To Previous Page IconTo Previous Page
Loading...
42
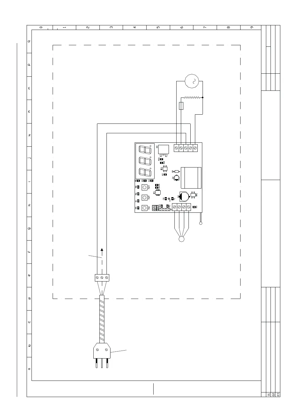
8 . SCH E M A ELETTR I C O - W I RIN G D IAGRAM - S CHE M A ELE C T RIQUE - E S Q U E M A A L Á M B R I C O - SCHALTPLA N
SU
ST
R
FT
M
DESCRIPTION
R= heating element
ST= temperature probe
SU= humidity probe
M= fan motor
FT= thermal fuse
ELECTRIC PLUG
TO BE CONNECTED TO
230V - 50Hz NET SUPPLY
YELLOW-GREEN WIRE
EARTHED SYSTEM
NEUTRAL
PHASE
INCUBATOR
GREEN
WHITE
RED
YELLOW
RENOVATION
DATE
INCUBATORS F.I.E.M. S.r.l.
Via G. Galilei, 3
22070 GUANZATE (CO) ITALY
DESCRIPTION
ELECTRIC DIAGRAM
INCUBATOR SMART DIG
DATE
SHEET
DWG
06-07-2018
1 OF 1
SMART ING_rev2.dwg

Other manuals for Fiem SMART

Related product manuals