EasyManua.ls Logo

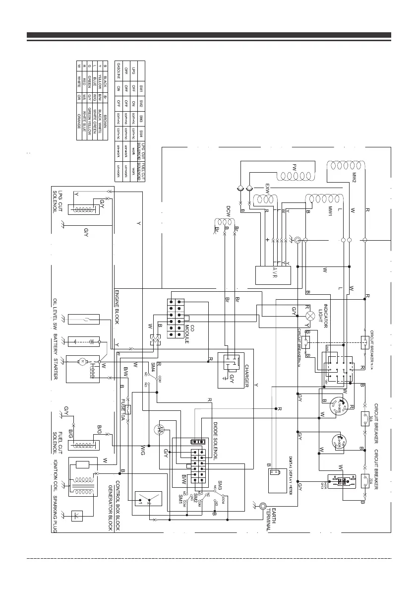
Firman T04073 - Wiring Diagram; Electrical System Schematic

Firman T04073
144 pages
Print Icon
To Next Page IconTo Next Page
To Next Page IconTo Next Page
To Previous Page IconTo Previous Page
To Previous Page IconTo Previous Page
Loading...
English Customer Service: 1-844-FIRMAN1
42
Parts Diagrams - Parts Lists - Wiring Diagram

Related product manuals