EasyManua.ls Logo

Flavel Arundel MK2 - Stove Information and Performance Data; Stove Dimensions and Components; Performance Data for Fuel Types

Flavel Arundel MK2
18 pages
Print Icon
To Next Page IconTo Next Page
To Next Page IconTo Next Page
To Previous Page IconTo Previous Page
To Previous Page IconTo Previous Page
Loading...
Section 1 - Stove Information
1.1 This Flavel Arundel MK2 multi-fuel stove meets the safety and performance
requirements of European Standard EN 13420 for intermittant burning solid fuel
roomheaters for installation in a dedicated chimney when operated in accordance
with these instructions. Independently tested by BSRIA laboratory, Berkshire, UK.
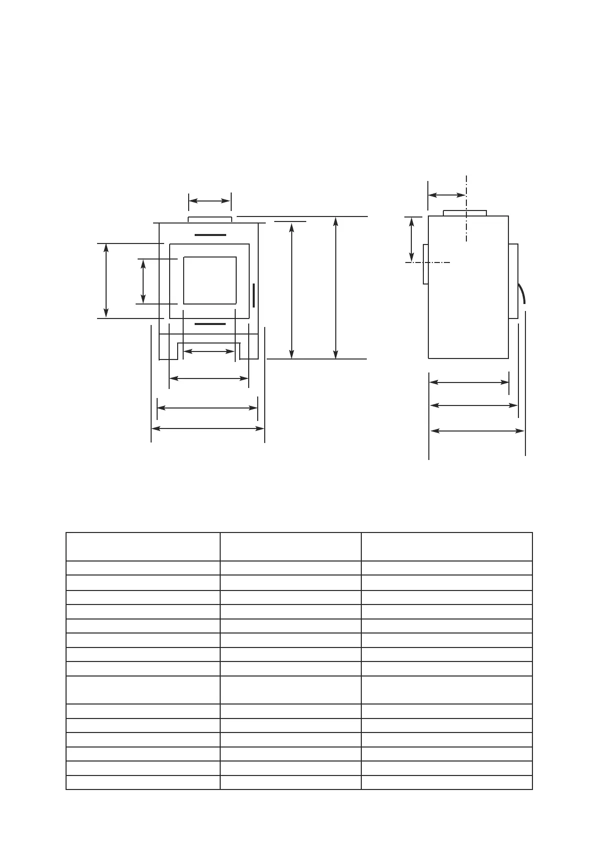
1.2 Stove Dimensions - see figure 1 below.
Fig. 1
The stove is supplied with the following loose items :-
1 off ashpan, 1 off ashpan handle / riddling mechanism tool & 1 off stove glove.
Section 2 - Stove Performance Data
Fuel Wood (Beech) Mineral Fuel
(Ancit)
Test standard EN 13240 : 2001 + A2 2004 EN 13240 : 2001 + A2 2004
Re-fuelling Interval 1.0hrs 2.0hrs
Settings 10% primary, 50% secondary 50% primary, 0% secondary
Flue draught (Pa) (ins WG) 12 (0.05) 12 (0.05)
Efficiency 76.3% 78.4%
Recommended output (kW) 4.9 4.8
Mean flue gas temperature (
o
C) 212 218
Minimum air entry requirement 2700mm
2
2700mm
2
Minimum clearance to
combustible surfaces
350mm Rear
375mm Side
350mm Rear
375mm Side
Emissions if O2 = 13%
NOx mg/m
3
88 165
CO % 0.24 0.27
CxHy mg/m
3
690 736
Gas flow g/sec 6.6 5.1
Smoke emission rate g/hr 3.10 (High) 2.53 (Low) N/A
575mm
620mm
400mm
430mm
125mm
110mm
110mm
440mm
290mm
300mm
390mm
305mm
330mm
385mm
Page 4 of 18

Related product manuals