EasyManua.ls Logo

Forma Scientific 1184 - Important Label Location Drawing

Forma Scientific 1184
65 pages
Print Icon
To Next Page IconTo Next Page
To Next Page IconTo Next Page
To Previous Page IconTo Previous Page
To Previous Page IconTo Previous Page
Loading...
Forma Scientific, Inc.____________________________________________General Cautions
5-2
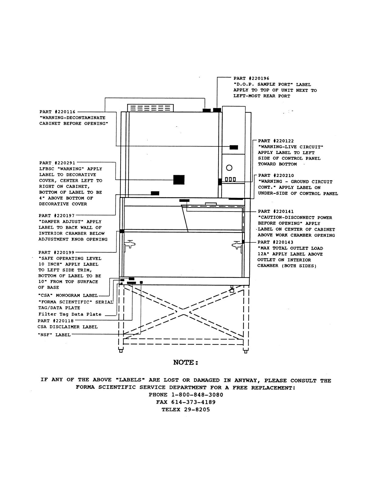
5.2 - Important Label Location Drawing

Other manuals for Forma Scientific 1184