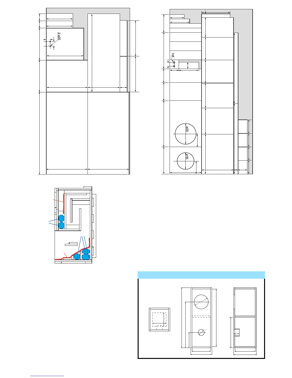
Bass Reex Type Enclosure
• FE206En is designed for use in a back load-
ed horn type enclosure and it is generally
unsuitable for bass reex because of its over
damping sound characteristics. However, it
is possible to use the FE206En in a bass re-
ex enclosure as shown.
• This example is a narrow and tall style bass
reex type enclosure. Internal volume of 45
liters tuned to approximately 50Hz (Fb).
• Low frequency response from around 120Hz
is gently damped with a controlled peak at
50 - 60Hz.
Sound
Absorbents
Sound
Absorbents
Sands
Sands
• This example has sufficient internal volume. However, if you prefer ‘tighter’
sound reproduction, you can reduce airspace using sands or other ll material.
• Placing thin sound absorbent material as shown enable reduction of peaks & dips
around 150 to 400Hz band width. However, it may reduce transient response. You
should adjust it to your taste.
• In order to avoid unwanted mid/high frequency dispersion of the horn, we recom-
mend damping the enclosure with ller and sound absorption material.
180
180
300
264
400
75
786
240
276
ø185
ø80
600
200
750
unit : mm
180
180
300
264
400
75
786
240
276
ø185
ø80
600
200
750
unit : mm
392
392
858
900350 350
80
80
450
450
450
350
80
408
290
290
80
50
1
2
3
4
5
6
7
8
9
10
11
13
14
15161718
20
21 2223
24
25
27
28
29
12
19
26
30
31
32
33
35
36
*Italic font means part number.
3005222001504-1004-50
440
290
275
255250
219
150
150
150
150
780780
74
40
350
350
100
50
160
219
313
100
220
80
145
145
1
18
28
10
21
24
23
25
3
17 16
15
14 13
7 5 8
6
20 22 29
4
27
9
2
11
392
392
858
900350 350
80
80
450
450
450
350
80
408
290
290
80
50
1
2
3
4
5
6
7
8
9
10
11
13
14
15161718
20
21 2223
24
25
27
28
29
12
19
26
30
31
32
33
35
36
*Italic font means part number.
3005222001504-1004-50
440
290
275
255250
219
150
150
150
150
780780
74
40
350
350
100
50
160
219
313
100
220
80
145
145
1
18
28
10
21
24
23
25
3
17 16
15
14 13
7 5 8
6
20 22 29
4
27
9
2
11