EasyManua.ls Logo

Foxboro 43AP - Mounting with Type 37 Meter

Default Icon
16 pages
Print Icon
To Next Page IconTo Next Page
To Next Page IconTo Next Page
To Previous Page IconTo Previous Page
To Previous Page IconTo Previous Page
Loading...
MI 011-476
January 1980 Installation
8
WARNING
!
Air is usually used as controller operating gas, and it is vented directly from case.
If a hazardous
1
gas is to be used instead, “GTC” option must be specified. This option
provides a vent connection on case which can be used to pipe gas to a location
classified for its dispersal. In addition, in normal operation some gas may bleed from
case; therefore, classification of controller location must permit presence of this gas.
1. Air supply must be regulated at 20 psi (140 kPa).
2. Controller uses about 0.3 std ft
3
/min (0.5 std m
3
/h) of air in normal operation.
3. Air must be clean and dry. Blow out filter regularly.
4. Air lines must be free of leaks.
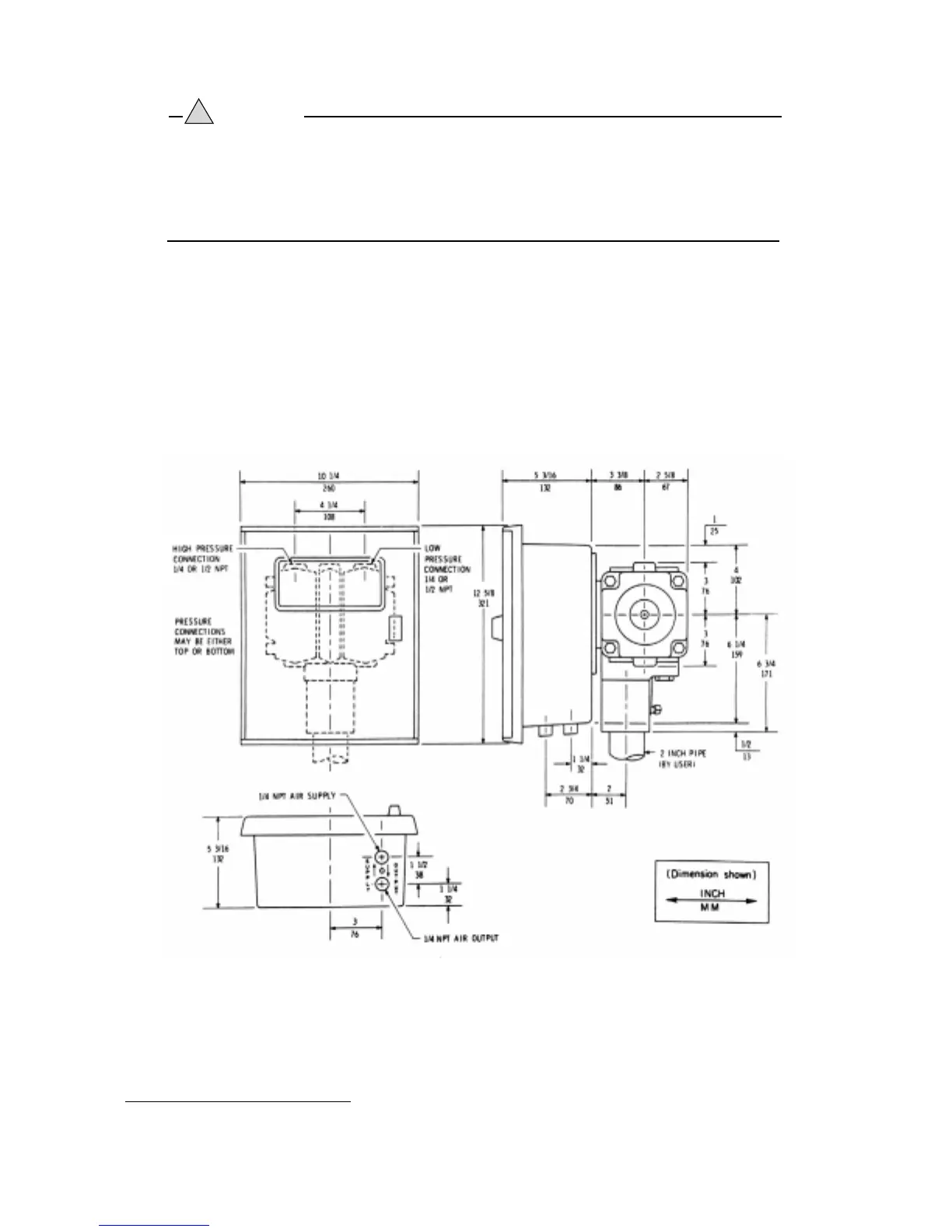
Mounting Controller with Type 37 Meter
1. See Nat’l Elect’l Code, NFPA 70, Art. 500-517.