EasyManua.ls Logo

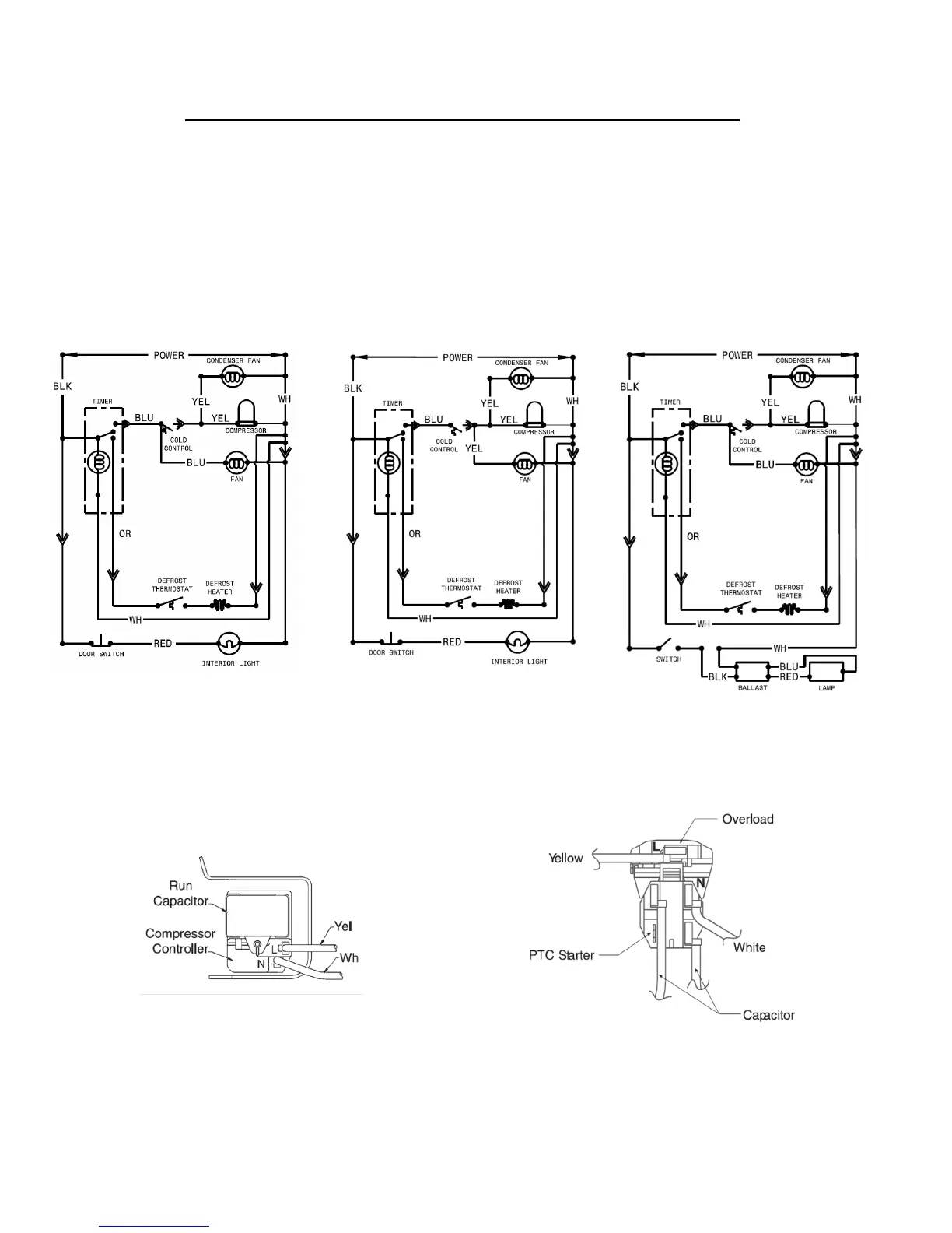
Frigidaire FCRS201RF - Wiring Diagram; Electrical Circuit Diagrams; Compressor Component Diagram

Frigidaire FCRS201RF
11 pages
Print Icon
To Next Page IconTo Next Page
To Next Page IconTo Next Page
To Previous Page IconTo Previous Page
To Previous Page IconTo Previous Page
Loading...
10
IMPORTANT SAFETY NOTICE
The information provided herein is designed to assist qualified repair personnel only. Untrained
persons should not attempt to make repairs due to the possibility of electrical shock. Disconnect
the power cord before servicing.
IMPORTANT
IF ANY GREEN GROUNDING WIRES ARE REMOVED DURING SERVICING, THEY MUST BE
RETURNED TO THEIR ORIGINAL POSITION AND PROPERLY SECURED.
ELECTRICAL CIRCUIT
STAINLESS STEEL DOOR
REFRIGERATOR
STAINLESS STEEL DOOR
FREEZER
GLASS DOOR
REFRIGERATOR

Related product manuals