EasyManua.ls Logo

Frigidaire FGFS36FWB - Page 2

Frigidaire FGFS36FWB
2 pages
Print Icon
To Previous Page IconTo Previous Page
To Previous Page IconTo Previous Page
Loading...
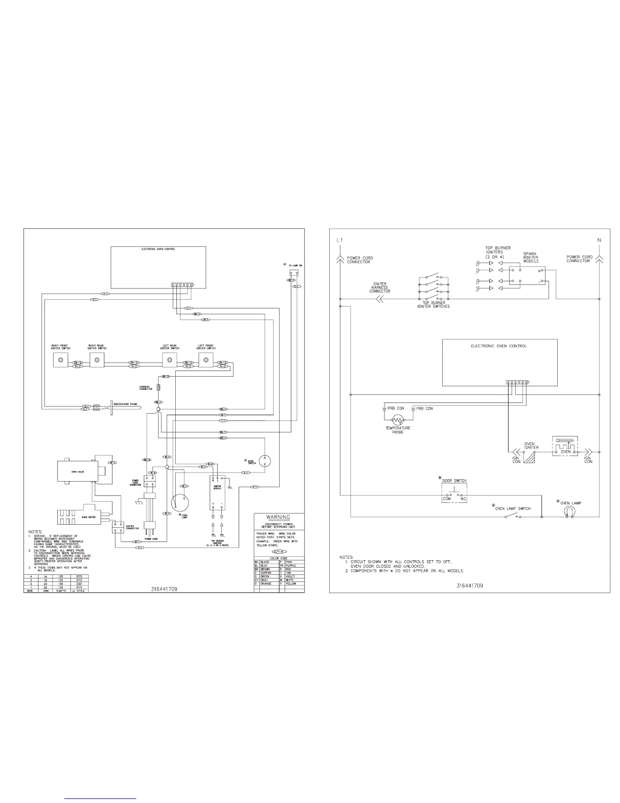
GENERAL TROUBLESHOOTING SCHEMATICGENERAL TROUBLESHOOTING DIAGRAM

Related product manuals