EasyManua.ls Logo

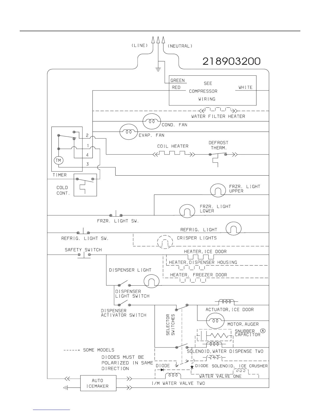
Frigidaire FRS26ZTH - Wiring Schematic

Frigidaire FRS26ZTH
21 pages
Print Icon
To Next Page IconTo Next Page
To Next Page IconTo Next Page
To Previous Page IconTo Previous Page
To Previous Page IconTo Previous Page
Loading...
07/00 20
Publication No. FRS26ZTHQ3
5995341343
WIRING SCHEMATIC

Related product manuals