EasyManua.ls Logo

Fuji Electric EW32SAG - Chapter 3 Selection and application; 3-1 Selection check points; 3-2 Cascade trip applications; 3-3 Selective trip applications

Fuji Electric EW32SAG
114 pages
To Next Page IconTo Next Page
To Next Page IconTo Next Page
To Previous Page IconTo Previous Page
To Previous Page IconTo Previous Page
Loading...
32
2
Operating characteristics and performance
2-7 Handle operating force and angle
2-7 Handle operating force and angle
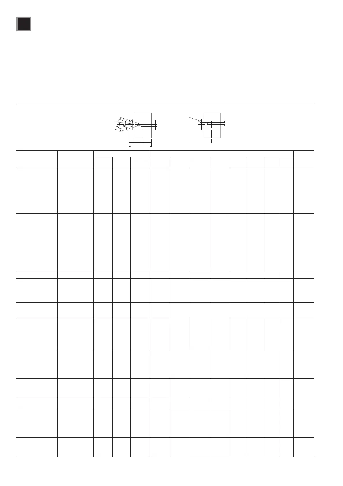
Table 2-15 shows the operating force and angle of handles by type of breaker.
Table 2-15 Handle operating force and angle
MCCB
ELCB (Reference)
Operating force (N·m) Operating angle ( gnitatoR)mm( snoisnemiD)
radius r
(mm)
OFF
ON
ON
OFF
Tr ip
Reset
ON
OFF
Tr ip
Reset
AB CD
BW32AAG-2P
BW32SAG-2P
BW50AAG-2P
BW50EAG-2P
BW50SAG-2P
BW50RAG-2P
BW63EAG-2P
BW63SAG-2P
BW63RAG-2P
BW100EAG-2P
EW32AAG-2P
EW50AAG-2P
0.42 0.54 0.89 22 15 4 17.5 57 84 9.5 26.9
BW32AAG-3P
BW32SAG-3P
BW50AAG-3P
BW50EAG-3P
BW50SAG-3P
BW50RAG-3P
BW63EAG-3P
BW63SAG-3P
BW63RAG-3P
BW100AAG-3P
BW100EAG-3P
EW32AAG-3P
EW32EAG-3P
EW32SAG-3P
EW50AAG-3P
EW50EAG-3P
EW50SAG-3P
EW50RAG-3P
EW63EAG-3P
EW63SAG-3P
EW63RAG-3P
EW100AAG-3P
EW100EAG-2P
EW100EAG-3P
0.59 0.7 1.6 22 15 4 17.5 57 84 9.5 26.9
3.168.0597.335.2111011276.13.181.1P2-GAJ
521WB
BW50HAG-3P
BW125JAG-3P
BW125SAG-2P,3P
BW125RAG-2P,3P
BW125HAG-3P
EW125JAG-3P
EW125SAG-3P
EW125RAG-3P
1.72 1.9 2.45 21 10 11 12.5 33.7 95 0.8 61.3
BW125JAG-4P
BW125SAG-4P
BW125RAG-4P
EW125JAG-4P
EW125SAG-4P
EW125RAG-4P
2.35 2.6 3.35 21 10 11 12.5 33.7 95 0.8 61.3
BW160EAG-3P
BW160JAG-2P,3P
BW160RAG-2P,3P
BW250EAG-3P
BW250JAG-2P,3P
BW250RAG-2P,3P
BW250HAG-3P
EW160EAG-3P
EW160JAG-3P
EW160RAG-3P
EW250EAG-3P
EW250JAG-3P
EW250RAG-3P
3.37 3.8 4.9 21 10 11 12.5 33.7 95 0.8 61.3
BW160JAG-4P
BW160SAG-4P
BW160RAG-4P
BW250JAG-4P
BW250SAG-4P
BW250RAG-4P
EW160JAG-4P
EW160SAG-4P
EW160RAG-4P
EW250JAG-4P
EW250SAG-4P
EW250RAG-4P
4.6 5.21 6.74 21 10 11 12.5 33.7 95 0.8 61.3
BW400EAG-2P,3P
BW400SAG-2P,3P
BW400RAG-2P,3P
BW400HAG-2P,3P
EW400EAG-3P
EW400SAG-3P
EW400RAG-3P
EW400HAG-3P
8 7.5 14 22 10.5 6.7 13.5 54.6 146 4.3 91.4
BW400RAG-4P
BW400HAG-4P
EW400RAG-4P
EW400HAG-4P
10.93 10.25 19.13 22 10.5 6.7 13.5 54.6 146 4.3 91.4
BW630EAG-3P
BW630RAG-3P
BW630HAG-3P
BW800EAG-3P
BW800RAG-3P
BW800HAG-3P
EW630EAG-3P
EW630RAG-3P
EW630HAG-3P
EW800EAG-3P
EW800RAG-3P
EW800HAG-3P
11 10 20 22 10.5 6.7 13.5 54.6 146 4.3 91.4
BW630RAG-4P
BW630HAG-4P
BW800RAG-4P
BW800HAG-4P
15.03 13.67 27.33 22 10.5 6.7 13.5 54.6 146 4.3 91.4
ON
Line side
Trip
OFF
Reset
r
B
A
C
D

Table of Contents

Related product manuals