EasyManua.ls Logo

Fuji Xerox ApeosPort-V 2060 - Auto Layout

Fuji Xerox ApeosPort-V 2060
751 pages
Print Icon
To Next Page IconTo Next Page
To Next Page IconTo Next Page
To Previous Page IconTo Previous Page
To Previous Page IconTo Previous Page
Loading...
Appendix
678
Appendix
16
Note
z
The HP-GL emulation supports five paper sizes: A3, A5, A4, B4, and B5.
Auto Layout
This section explains Auto Layout.
What is Auto Layout?
Auto Layout is a function that evaluates document size using the HP-GL data entered from
a host system and enlarges or reduces the document size corresponding to the paper size so
that data plotted is placed in the center of the paper. Using the Auto Scaling/Auto Layout
B4 72828 103176 1260 1260 70308 100656 71568 101916 1260 1260
B5 51588 72828 1260 1260 49068 70308 50328 71568 1260 1260
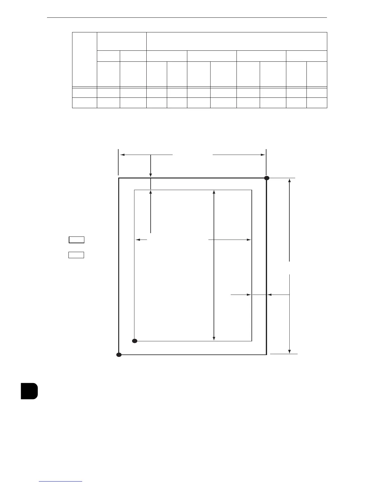
Papers
ize
Paper Length(1/
7200 inch
Coordinate Value (1/7200 inch)
X Axis Y Axis Margin Printable Area Top-right Edge Margin
Width Height Botto
m-
left X
Botto
m-
left Y
LongS
ide
ShortSi
de
Toprig
htX
Toprigh
tY
XR YU
YU
Physical
paper size
Printable Area
(0, 0)
Top-right X, Top-right Y
Short-side
Long-side
XR
Height
Width
Bottom-left X, Bottom-left Y

Table of Contents

Other manuals for Fuji Xerox ApeosPort-V 2060

Related product manuals