EasyManua.ls Logo

Fujioh BUF-021 - Component Parts List; Assembly Hardware Details

Fujioh BUF-021
12 pages
Print Icon
To Next Page IconTo Next Page
To Next Page IconTo Next Page
To Previous Page IconTo Previous Page
To Previous Page IconTo Previous Page
Loading...
11
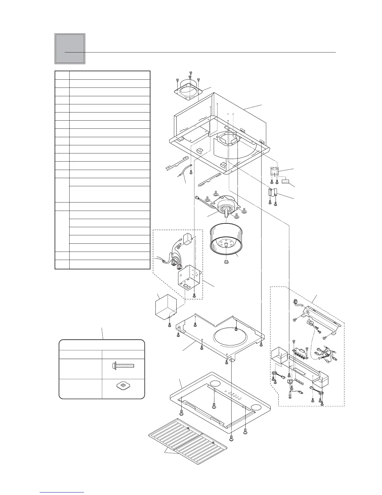
No. Component / Part
2
1
4
7
3
8
9
5
6
10
11
15
13
::
rangehoods
.
com
Call 1-800-667-8721 anywhere in the US and Canada
-
www.rangehoods.com
U N L I M I T E D
Fujioh at kitchen::accessories
14
12
Attachment
Four(4) Pieces
Four(4) Pieces
Screw
M5 × 30
M5
Nut with plate
Name of parts Figure
1 Enclosure
2 Exhaust Pipe Unit
3 Earth Wire Unit
4 Motor
5 Wire Holder
6 Seal
7 Sirocco Fan
8 Wire Box Unit
9 Wire Cover
10 Motor Wire Cover
11 Partition Board
12 Switch Box Unit
(For Clear Coated Stainless)
(For White, Black, Biscuit
and Silver Metallic)
13 Front Cover
(White)
(Black)
(Biscuit)
(Silver Metallic)
(Clear Coated Stainless)
14 Filter
15 Attachment
parts list

Other manuals for Fujioh BUF-021

Related product manuals