EasyManua.ls Logo

Fujitsu AOG30AMBL - Page 18

Fujitsu AOG30AMBL
63 pages
Print Icon
To Next Page IconTo Next Page
To Next Page IconTo Next Page
To Previous Page IconTo Previous Page
To Previous Page IconTo Previous Page
Loading...
Models :
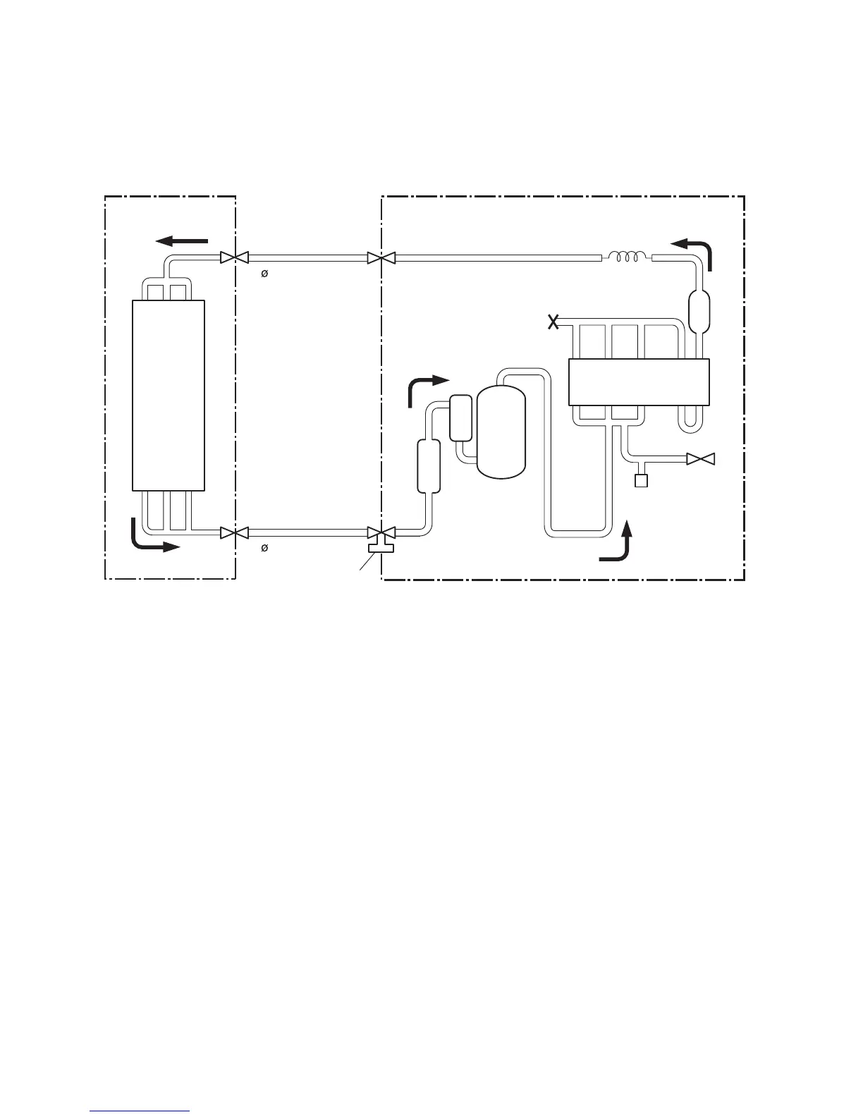
Refrigerant pipe
15.88mm(5/8")
Refrigerant pipe
9.52mm(3/8")
Capillary tube
Charging valve
Compressor
Dryer
OUTDOOR UNITINDOOR UNIT
Condenser
Check joint
Pressure
switch
Evaporator
Accumulator
ARG30ALC / AOG30AMBH
ARY30ALC / AOY30AMBH
172003.05.08

Related product manuals