EasyManua.ls Logo

Fujitsu AOH9USCC - Circuit Diagram

Fujitsu AOH9USCC
18 pages
Print Icon
To Next Page IconTo Next Page
To Next Page IconTo Next Page
To Previous Page IconTo Previous Page
To Previous Page IconTo Previous Page
Loading...
1
1
2
1
2
6
5
4
3
2
10
9
8
7
6
10
9
8
7
6
1
6
5
4
1
2
3
1
2
3
3
2
1
6
5
4
3
2
1
2 3 4 5
1 2 3 4 5 6 7 8
1 2 3 4 5 6 7 8
1 2 3 4 5 6 7 8
5
4
3
2
1
5
4
3
2
1
3
2
1
3
2
1
2
1
2
1
2
1
2
1
Thermal Fuse
103
Thermal Fuse
N
N
L
L
3 4
Relay
3
4
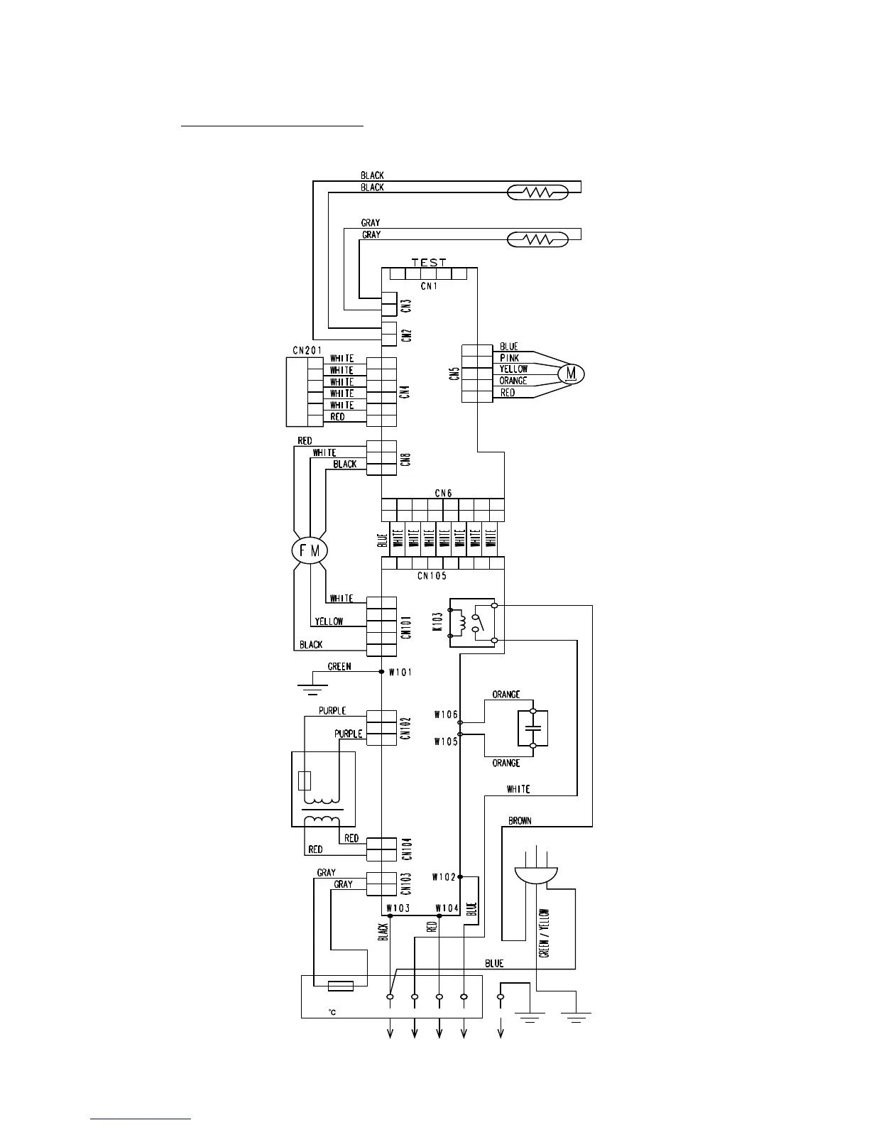
CIRCUIT DIAGRAM
Models : ASY9USCCW
ASY12USCCW
Thermistor
(Room Temp.)
Thermistor
(Pipe Temp.)
Controller PCB
Display PCB
Terminal
Fan Motor
Capacitor
Stepping Motor
Transformer
Fan Motor
Power Supply PCB
52005.02.18

Related product manuals