EasyManua.ls Logo

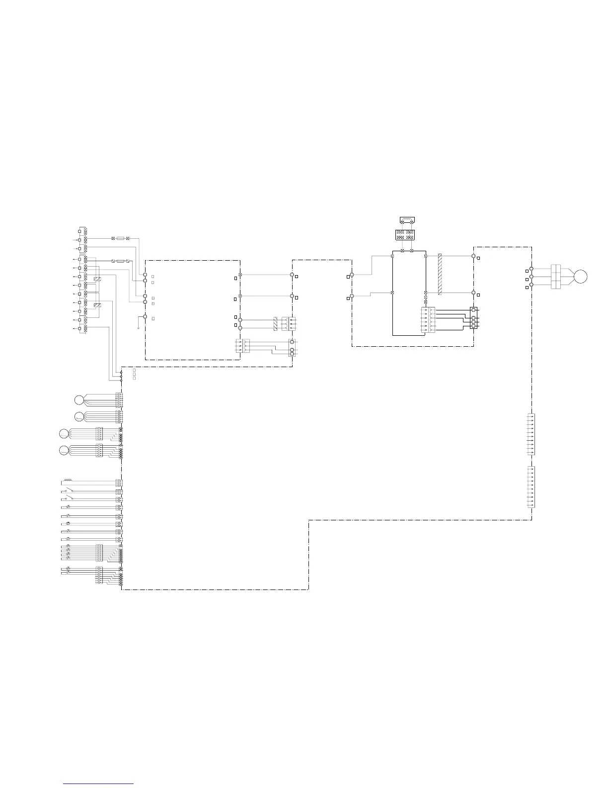
Fujitsu AOHA18LAT3 - Outdoor PCB Circuit Diagram

Fujitsu AOHA18LAT3
24 pages
Print Icon
To Next Page IconTo Next Page
To Next Page IconTo Next Page
To Previous Page IconTo Previous Page
To Previous Page IconTo Previous Page
Loading...
COMPRESSOR
1
3
2
1
3
2
WHITE
BLACK
REDRED
WHITE
BLACK
UL1015 AWG14
B
B
B
W305
W304
W303
C. M.
W12
W13
B
B
UL1015 AWG14 YELLOW
UL1015 AWG14 BLUE
CN407
06 PH / 172520
1007 L480
WHITE
ACTPM CONTROL
1
3
4
5
UL1007 AWG24 ORANGE
UL1007 AWG24 YELLOW
UL1007 AWG24 RED
UL1007 AWG24 BROWN
EMI FILTER
TFC25-15-12A
2T
TERMINAL
HP-T4005-21
CHOKE COIL
L=0.3MH 30A
P
L1 L2
N1
N2
I O
-
+
1
2
3
4
5
6
B
B
UL1015
AWG14
RED
UL1015
AWG14
BLACK
W16
W17
UL1015
AWG14
BLACK
UL1015
AWG14
WHITE
UL1015
AWG14
BROWN
UL1015
AWG14
BLACK
CN602
B10B-PASK-1
WHITE
SUB FLASH
CN601
B10B-PASK-1
WHITE
MAIN FLASH
1
2
3
4
5
6
7
8
9
10
1
2
3
4
5
6
7
8
9
10
5V
GND
TAUX
TTXD
TRXD
TMODE
TAUX3
TCK
/ TRES
/ T I CS
5V
GND
TAUX
TTXD
TRXD
TMODE
TAUX3
TCK
/ TRES
/ T I CS
B
B
W11
W10
UL1015 AWG14 BLACK
UL1015 AWG14 WHITE
UL1015 AWG20 WHITE
UL1015 AWG20 BLACK
B
B
UL1007 AWG24 BLACK
UL1007 AWG24 BROWN
UL1007 AWG24 RED
W9
W8
TM102
TM101
CN34
B2P3-VH-B-Y
YELLOW
AC VOLT I N
CN1
03 XA / 172520
1007 L180
WHITE
CT
1
3
4
3
1
EMI FILTER
TFC25-15-12
2T
03 VH / S I N
1015 L250
CN1
B3B-XASK-1-A
WHITE
CT OUT
1
2
3
B
B
B
B
B
W4
W6
W5
W7
W3
EARTH
UL1015
AWG16
GREEN
UL1015
AWG20
WHITE
UL1015
AWG20
BLACK
UL1015
AWG20
RED
UL1015
AWG14
BLACK
UL1015
AWG20
BLACK
UL1015
AWG20
WHITE
UL1015
AWG20
BLACK
UL1015
AWG20
BLACK
UL1015
AWG20
WHITE
UL1015
AWG20
PINK
UL1015
AWG20
YELLOW
UL1015
AWG20
WHITE
EMI FILTER
ZCAT1518
-0730
1T
EMI FILTER
ZCAT1518
-0730
1T
UL1015
AWG20
BLACK
UL1015
AWG14
BLACK
UL1015
AWG14
WHITE
F201
TLC 25A-250V, B
(250V 25A)
AC230V
50Hz
INDOOR UNIT-A
INDOOR UNIT-B
INDOOR UNIT-C
3
N
L
3
N
L
3
N
L
N
L
F202
FSL 250 10 (EM)
(250V 10A)
SERIAL-A
SERIAL-C
SERIAL-B
W200
W201
W202
CN800
B7B-XASK-1-A
WHITE
B
B
B
CN27
B6B-XARK-1-A
RED
CN50
06 XA / 172520
1007
WHITE
CN51
06 XA / 172520
1007
GREEN
CN30 179844-1
WHITE
CN37 B2B-XARK-1-A
RED
CN36 B2B-XASK-1-A
WHITE
CN26 B2B-XAMK-1-A
GREEN
CN25 B2B-XAKK-1-A
BLACK
CN21 B2B-XH-AM
YELLOW
CN22 B2B-XH-AM
RED
CN23 B2B-XAEK-1-A
BLUE
CN39
08 XA / 172520
1007
WHITE
CN40
08 XA / 172520
1007
RED
1
3
1
2
1
2
1
2
1
2
1
2
1
2
1
2
1
2
3
4
5
6
7
8
9
4
5
6
7
8
9
1
3
4
5
6
7
1
4
5
6
7
2
1
3
4
5
6
2
1
3
4
5
6
2
1
7
YELLOW
WHITE
BLACK
RED
BROWN
RED
BROWN
BLUE
ORANGE
YELLOW
WHITE
BLACK
WHITE
WHITE
WHITE
WHITE
WHITE
GREEN
GREEN
GREEN
GREEN
GREEN
BLACK
BLACK
BLACK
RED
RED
RED
RED
BROWN
BROWN
BROWN
BROWN
BLACK
BLACK
BLACK
BLACK
BLUE
BLUE
BLACK
WHITE
WHITE
WHITE
WHITE
WHITE
WHITE
WHITE
BLACK
RED
RED
RED
RED
RED
RED
RED
WHITE
YELLOW
ORANGE
BLUE
BROWN
RED
WHITE
YELLOW
ORANGE
BLUE
BROWN
RED
BROWN
GRAY
BLACK
BLUE
YELLOW
RED
2-WAY VALVE-C TEMP.
3-WAY VALVE-C TEMP.
2-WAY VALVE-B TEMP.
3-WAY VALVE-B TEMP.
2-WAY VALVE-A TEMP.
3-WAY VALVE-A TEMP.
OUTDOOR TEMP.
PIPE TEMP.
DISCHARGE TEMP.
HEATSINK TEMP.
COMP. TEMP.
PRESSURE SWITHC-2
PRESSURE SWITHC-1
4-WAY VALVE
EXPANSION VALVE-C
EXPANSION VALVE-B
EXPANSION VALVE-A
DC FAN MOTOR F. M.
M
M
M
CONTROLLER PCB ASSEMBLY ( MAIN PCB )
AOHA18LAT3 : K04AW-0605HUE-C1
AOHA24LAT3 : K04AW-0602HUE-C1
POWER SUPPLY PCB ASSEMBLY
K04BA-0505HUE-P0
B
B
ACTPM
I C 404
SACT32010A
INVERTER ASSEMBLY
AOHA18LAT3 : EZ-006KHUE
AOHA24LAT3 : EZ-0068HUE
OUTDOOR PCB CIRCUIT DIAGRAM
102008.04.21

Related product manuals