EasyManua.ls Logo

Fujitsu AOUH30LPAS1 - 4. Capacity Tables

Fujitsu AOUH30LPAS1
29 pages
Print Icon
To Next Page IconTo Next Page
To Next Page IconTo Next Page
To Previous Page IconTo Previous Page
To Previous Page IconTo Previous Page
Loading...
ļ‚˜
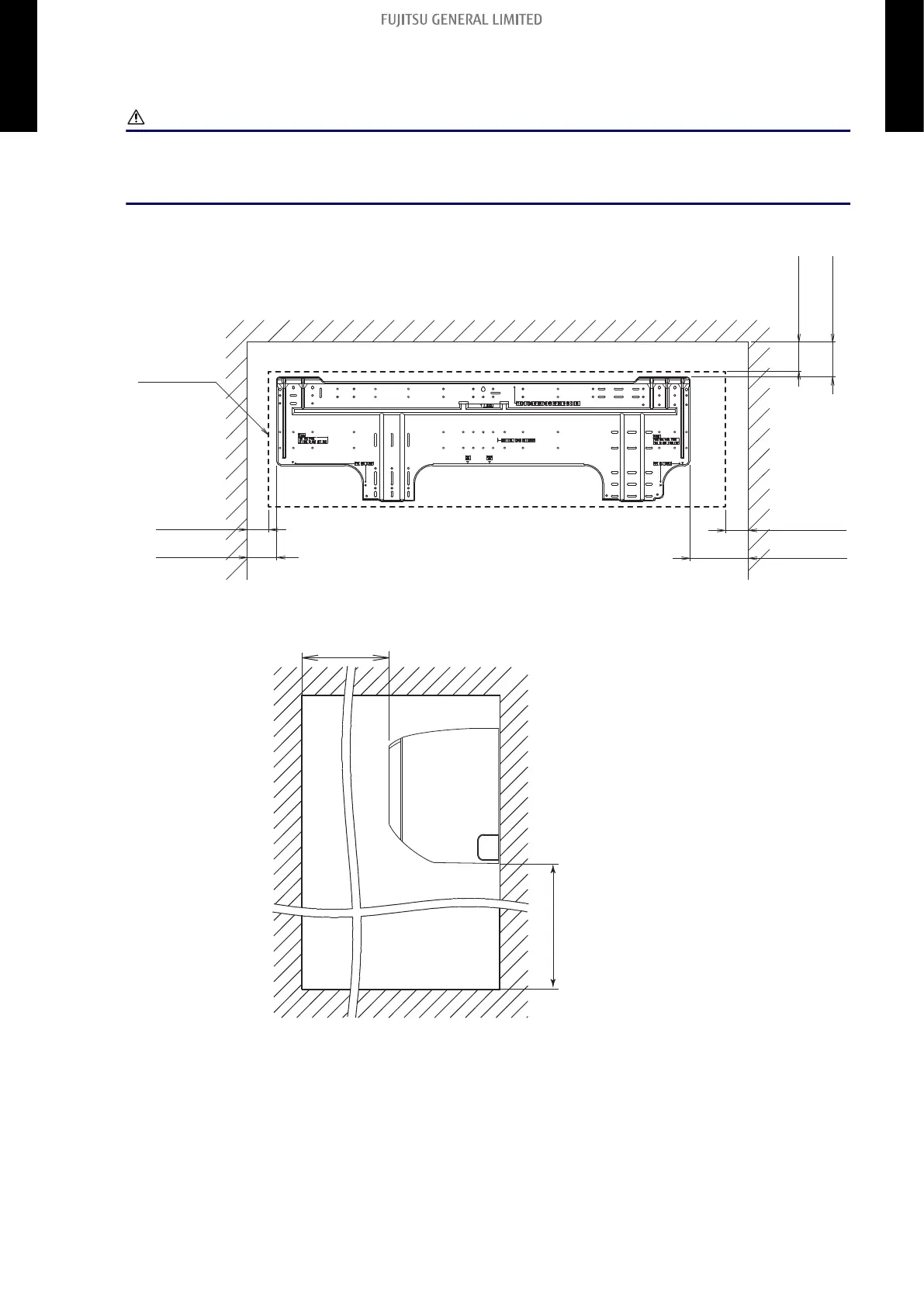
Installation space requirement
Provide sufficient installation space for product safety.
CAUTION
Do not place any other electrical products or household belongings under the product. Conden-
sation dripping from the product might get them wet, and may cause damage or malfunction to
the property.
2-1/2 (63)
or more
3-8/1 (80)
or more
1-15/16 (50)
or more
1-15/16 (50)
or more
2-3/4 (70)
or more
Outline of unit
5-1/2 (140)
or more
59-1/16 (1,500) or more
70-7/8 (1,800) or more
Unit: in (mm)
2-1. Indoor unit - (01-5) - 2. Dimensions
GENERAL
INFORMATION
GENERAL
INFORMATION

Other manuals for Fujitsu AOUH30LPAS1

Related product manuals