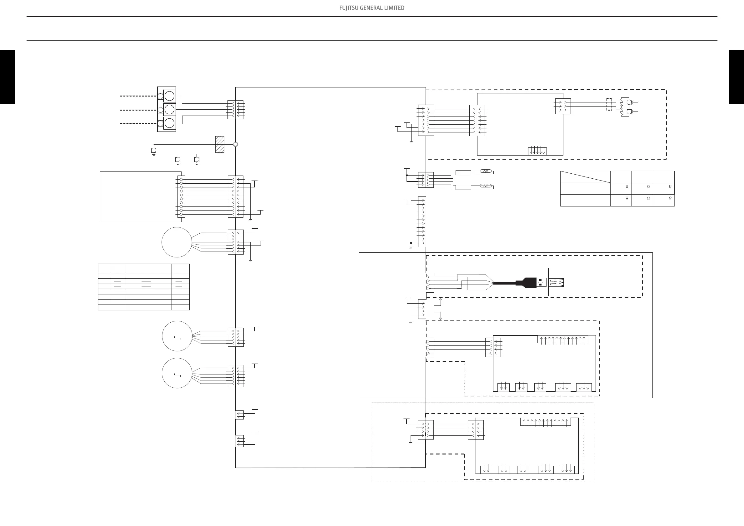
7. PC board diagrams
AWG26
WHITE
AWG26 RED
AWG26
WHITE
AWG26 WHITE
AWG26 WHITE
AWG26 WHITE
AWG26
WHITE
AWG22 WHITE
AWG22
RED
7
6
5
4
3
2
1
7
6
5
4
3
2
1
3
2
1
CN13
B07B-PASK-1
WHITE
CN301
B07B-PASK-1
WHITE
CN300
B03B-XNISK-A-1
WHITE
CN1
SM05B-SRSS-TB
WHITE
5 4 3 2 1
COMMUNICATION PCB
K16JS-1600HSE-CA0
FLASH
EMI FILTER
ZCAT1518-0730
2 TURNS
REMOTE
CONTROLLER
( 2-WIRE )
MAIN PCB
30 model: K20AZ-210AHSE-C1
36 model: K20AZ-210BHSE-C1
DC12V
DC5V
BLACK
BLACK
BLACK
BLACK
BLACK
BLACK
4
3
2
1
CN1
B04B-PLIRK-1
RED
THERMISTOR ( ROOMTEMP. )
THERMISTOR ( PIPE TEMP. )
DC5V-2
CN1 Thermistor Characteristics.
Thermistor
Thermistor ( Pipe temp. )
176.03 k
62.91 k
39.57 k
1.10 V
2.21 V 2.79 V
Thermistor ( Room temp. )
33.62 k
12.54 k
8.04 k
1.15 V
2.22 V 2.77 V
Temperature
12
11
10
9
8
7
6
5
4
3
2
1
CN4
B12B-PASK-1
WHITE
TEST
DC5V
UL1430 AWG26 x 4
WHITE
RED
BLACK
GREEN
CN75
B04B-PAKK-1
BLACK
4
3
2
1
DC12V-3
( 4 BLACK )
( 3 GREEN )
( 2 WHITE )
( 1 RED )
J2
USB5-A4M2-KNSO-01
WHITE
AWG26
GRAY
AWG26
GRAY
AWG26
GRAY
AWG26
GRAY
1 2 3 4 5 6 7 8 9 10 11 12
1 2 3
1 2 3
1 21 21 2
1
2
3
4
CN308
B04B-PASK-1
WHITE
CN309
B12B-PASK-1
WHITE
CN314
B3B-XH-AM
WHITE
CN313
B3B-XH-AM
WHITE
CN312
B2B-XH-AM
WHITE
CN311
B2B-XH-AM
WHITE
CN310
B2B-XH-AM
WHITE
UART COMMUNICATION PCB
K14YM-1500HSE-CA0
EX. OUT1 EX. OUT2
EX. OUT3 EX. IN1
EX. IN2
FLASH
AWG26 GRAY
AWG26
GRAY
AWG26
GRAY
AWG26
GRAY
CN65
B04B-PASK-1
WHITE
4
3
2
1
DC12V-3
1 2 3 4 5 6 7 8 9 10 11 12
1 2 3
1 2 3
1 21 21 2
1
2
3
4
CN308
B04B-PASK-1
WHITE
CN309
B12B-PASK-1
WHITE
CN314
B3B-XH-AM
WHITE
CN313
B3B-XH-AM
WHITE
CN312
B2B-XH-AM
WHITE
CN311
B2B-XH-AM
WHITE
CN310
B2B-XH-AM
WHITE
COMMUNICATION PCB
K14YM-1500HSE-CA0
EX. OUT1 EX. OUT2
EX. OUT3 EX. IN1
EX. IN2
FLASH
AWG28 WHITE
AWG28
WHITE
AWG28
WHITE
AWG28
WHITE
AWG28
WHITE
AWG28
WHITE
AWG28
WHITE
AWG28 WHITE
AWG28 WHITE
AWG28
WHITE
10
9
8
7
6
5
4
3
2
1
10
9
8
7
6
5
4
3
2
1
CN9
B10B-PASK-1
WHITE
CN200
S10B-PASK-2
WHITE
INDICATOR PCB
K18RB-1802HSE-D0
DC12V
DC5V
RED
WHITE
BLACK
YELLOW
BLUE
RED
ORANGE
YELLOW
PINK
BLUE
7
6
5
4
1
5
4
3
2
1
CN5
B5 ( 7-2.3 ) B-XASK-1-A
WHITE
CN7
B05B-PLISK-1
WHITE
LOUVER UP / DOWN
DC FAN MOTOR
FM
M
DC340V
DC15V
A
DC12V
E1
CN14
B3 ( 5.0 ) B-XASK-1-A
WHITE
5
4
3
2
1
EARTH
AWG22 WHITE
AWG22
BLACK
AWG22 RED
UL1015 AWG16
GREEN
UL1015 AWG20 GREEN
EMI FILTER
ZC7KT 14X8X4
3 TURNS
1
2
3
OUTDOOR UNIT
POWER SOURCE
AC208-230V
60Hz
L
N
SERIAL
TERMINAL
CN47
B2B-XH-AM
WHITE
CN46
B3B-XH-AM
WHITE
EX. IN
EX. OUT
3
2
1
2
1
DC12V
DC5V
OR
CONTROL UNIT
30 model: EZ-02109HSE
36 model: EZ-0210AHSE
CN5 DC Fan motor
1
3
4
5
6
7
Pin No.
Terminal
code
Vm
GND
Vcc
Vsp
FG
Function of terminal
Revolution pulse output
Speed control voltage input
Control power voltage input
GND
Motor power voltage input
Lead wire
color
Red
Black
White
Yellow
Blue
2
RED
ORANGE
YELLOW
PINK
BLUE
1
2
3
4
5
6
CN8
B06B-PLIRK-1
RED
LOUVER ( RIGHT / LEFT ) M
DC12V
TYPE A
OPTION UNIT (WIRELESS LAN ADAPTER)
*Either A or B can be connected.
*Only type B can be connected.
OPTION UNIT (EXTERNAL INPUT AND OUTPUT)
TYPE B
OPTION UNIT (EXTERNAL INPUT AND OUTPUT)
OPTION UNIT (2-WIRE REMOTE CONTROLLER)
32
°F
68
°F
86
°F
7-1. Models: ASUH30LPAS and ASUH36LPAS - (02-14) - 7. PC board diagrams