EasyManua.ls Logo

Fujitsu ARY30LUAN - POWER SUPPLY PCB ASSEMBLY

Fujitsu ARY30LUAN
26 pages
Print Icon
To Next Page IconTo Next Page
To Next Page IconTo Next Page
To Previous Page IconTo Previous Page
To Previous Page IconTo Previous Page
Loading...
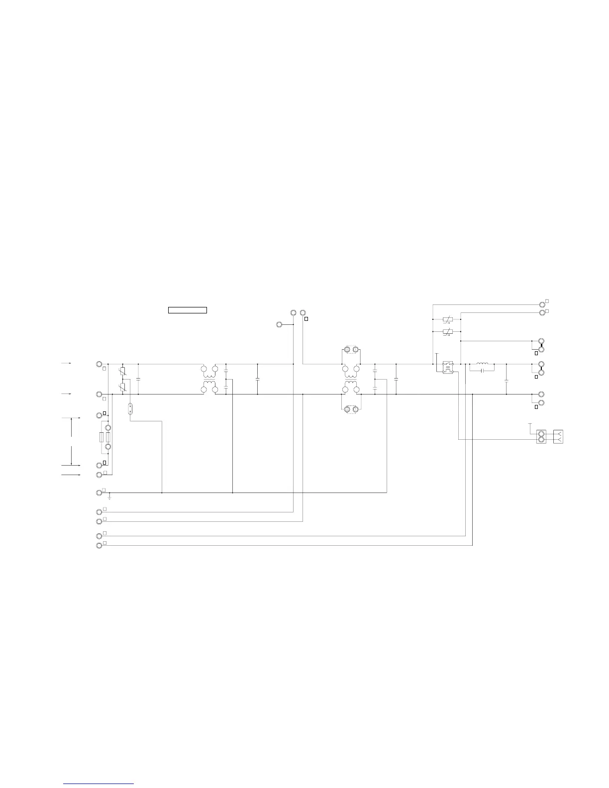
C106
3.3 <LE>
or
1.0 <LE>-M
C109 - C110
1000P <E>
W5
W6
4
3
1
2
K101
G4A-1A
or
DW12D1
12V
C108
3.3 <LE>
C107
1.0 <LE>-M
L102
N200500K1D7C
12V
R100
ZPR0RCH400
R101
ZPR0RCH400
PTC THERMISTOR
PTC THERMISTOR
2
3
1
4
L101
RHC3818-022PF07
or
SC-18-15JH
C103
3.3 <LE>
or
1.0 <LE>-M
L100
RHC3818-022PF07
or
SC-18-15JH
C100
3.3 <LE>
or
1.0 <LE>-M
VA100
470V
<TNR>
VA101
470V
<TNR>
B
B
B
B
B
SA100
RA-302M
FH100
PFC5000-0502
FH101
PFC5000-0502
F100
10A
<TSCR>
FSL 10A
250V
or
or
B
B
B
B
B
C104 - C105
0.033
<YE>
or
0.022
or
3000P
4
3
1
2
W9
BLACK
B
TM6
W21
GRAY
CT OUT
PTC OUT
B
B
B
B
B
W25
ORANGE
W26
ORANGE
TM5
W27
ORANGE
W28
ORANGE
TM1
TM2
W29
BROWN
CN100
1725200-2
POWER RELAY
CONTROL
1
2
BLACK W1
WHITE W2
W16
BLACK
W17
BLACK
W18
WHITE
W3
GREEN
ERATH
N
L
TO INDOOR UNIT
AC VOLT OUT
AC VOLT OUT 2
L
N
L
W19
BLACK
W20
WHITE
W24
WHITE
W23
BLACK
FILTER CIRCUIT
POWER SUPPLY PCB ASSEMBLY
K05CW-0501HUE-FL0
2006.08.16 10

Related product manuals