EasyManua.ls Logo

Fujitsu ARYF18LBLU - Page 32

Fujitsu ARYF18LBLU
69 pages
Print Icon
To Next Page IconTo Next Page
To Next Page IconTo Next Page
To Previous Page IconTo Previous Page
To Previous Page IconTo Previous Page
Loading...
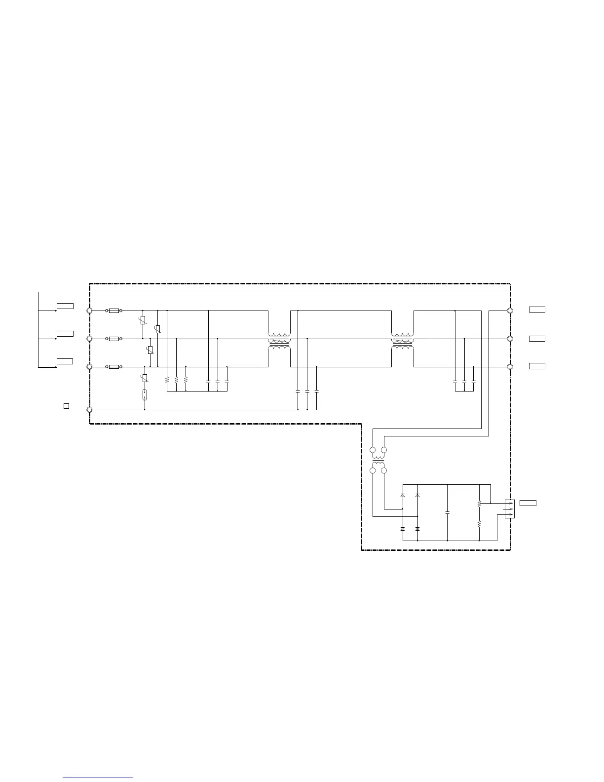
CT200
FC-1-X
C221
220/
16V
+
R203
470
<1/4W>
VR200
B200
D201
D203
D202D200
1SS133 x 4
L200
RC3V3812-009PF05
12A 0.9mH
L201
RC3V3812-009PF05
12A 0.9mH
C218 - C220
1.0 <ECQUL>
x 3
C206 - C208
0.022 <ECQ-UY>
x 3
C200 - C202
1.0 <ECQUL>
x 3
R200 - R202
1.0M <1/2W>
x 3
SA200
RA-362M
VA203
470V
<TNR>
P202
<NSHV4>
15A
FH204 FH205
P201
<NSHV4>
15A
FH202 FH203
FH200 FH201
P200
<NSHV4>
15A
VA201
820V
<TNR>
VA200
820V
<TNR>
VA202
820V
<TNR>
TM203
TM204
TM205
L3 OUT
BLACK
L2 OUT
WHITE
L1 OUT
RED
5
6
3
4
1
2
5
6
3
4
1
2
L1 I N
RED
TM200
L2 I N
WHITE
TM201
L3 I N
BLACK
TM202
W206
E
GREEN
CN200
2-1871843-3
CT OUT
G I C2.5 3P
BLUE
1
2
3
1
2
3
3
2
4
1
3 Phase
380 - 415V
50Hz
H-0017-2 x 2
H-0017-2 x 2
H-0017-2 x 2
2008.10.23 31
OUTDOOR UNIT
POWER SUPPLY PCB ASSEMBLY
K07AQ-0700HUE-FL0

Related product manuals