EasyManua.ls Logo

Fujitsu ASHG24LFCA - Page 76

Fujitsu ASHG24LFCA
413 pages
Print Icon
To Next Page IconTo Next Page
To Next Page IconTo Next Page
To Previous Page IconTo Previous Page
To Previous Page IconTo Previous Page
Loading...
3. OUTDOOR UNIT & BRANCH BOX
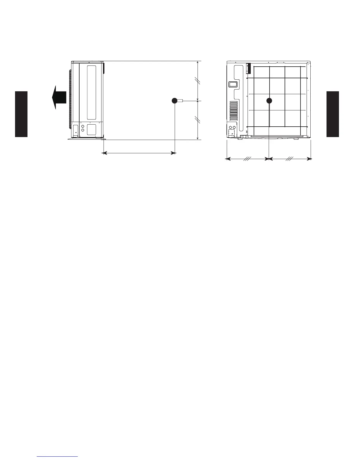
SOUND LEVEL CHECK POINT
Microphone
Air flow
1 m
- (03 - 18) -
OUTDOOR
UNITS
OUTDOOR
UNITS

Table of Contents

Related product manuals