EasyManua.ls Logo

Fujitsu ASHG24LFCC - Page 76

Fujitsu ASHG24LFCC
413 pages
Print Icon
To Next Page IconTo Next Page
To Next Page IconTo Next Page
To Previous Page IconTo Previous Page
To Previous Page IconTo Previous Page
Loading...
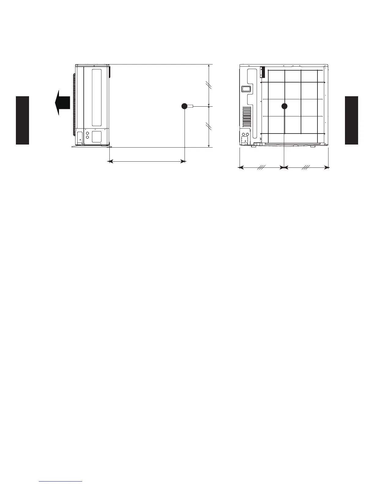
3. OUTDOOR UNIT & BRANCH BOX
SOUND LEVEL CHECK POINT
Microphone
Air flow
1 m
- (03 - 18) -
OUTDOOR
UNITS
OUTDOOR
UNITS

Table of Contents

Related product manuals