EasyManua.ls Logo

Fujitsu ASU12RLF1 - Page 2

Fujitsu ASU12RLF1
3 pages
Print Icon
To Next Page IconTo Next Page
To Next Page IconTo Next Page
To Previous Page IconTo Previous Page
To Previous Page IconTo Previous Page
Loading...
FUJITSU GENERAL AMERICA, INC
353 Route West. Fairfield, NJ 07004
Ph: 973-575-0381 Fx: 973-836-0449
Em: ServiceHVAC@fujitsugeneral.com
SERVICE BULLETIN
Number: 0030
Date: 9/25/14
TYPE: Field
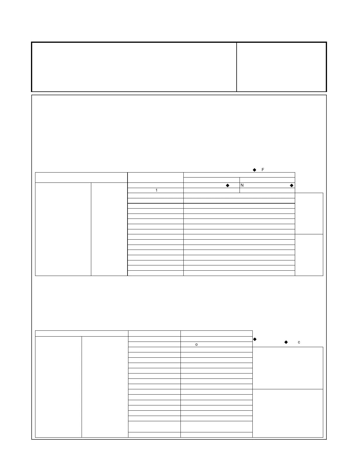
Function Number Setting Value
Setting Description
When select 95-00 When select 95-01
30
(For
Cooling
)
31
(For
Heating
)
00 *Standard Setting
No Correction 0.0°F(0.0°C)
01 No Correction 0.0°F(0.0°C) No Correction 0.0°F(0.0°C)
02 -1°F (-0.5°C)
More Cooling
Less Heating
03 -2°F (-1.0°C)
04 -3°F (-1.5°C)
05 -4°F (-2.0°C)
06 -5°F (-2.5°C)
07 -6°F (-3.0°C)
08 -7°F (-3.5°C)
09
-
8
°
F (
-
4.0
°
Temperature Correction:
•Heat insulation condition (building insulation)
•Standard setting “00” allows system to rapidly respond to the cooling or heating load change when using room temperature sensor only.
•Heat insulation conditions differ according to the installed environment.
•Select “01” (High insulation) if the heat insulation structure of the building is high and does not require system to rapidly respond to cooling or heating load
changes.
•When 01” is selected, it prevents overheating (overcooling) at the start-up.
•When 01” is selected, all room temperature sensor and wire remote temp sensor settings will reset to factory setting.
•When “01” is selected, reset system (power off for two minutes then back on) and perform function settings 30, 31, 92, 93 to your desired temp control
level and reset power again.
•When “01” is selected, “standard setting “00” and no correction setting “01” are the same 0.0°F (0.0°C) Only when 95-01 is selected are these setting
values the same.
•The only function setting that will reset to factory settings when function 95-01 is selected are the temp correction settings 30,31, 92, 93.
•Confirm all function settings but do not re-enter function 95-00 or 95-01 as it will reset your temp correction settings.
•If you re-enter any of these two you must re-do all temp correction settings.
(
… Factory Setting)
Room Temperature Control for Wired Remote Controller Sensor
•Depending on the installed environment, correction of the wired remote temperature sensor may be required.
•Select the appropriate control setting according to the installed environment.
•Function 42-01 (unlocks thermo sensor) and function 48-01 (switches sensing from indoor unit to wired remote) need to be set for wired remote controller
sensor setting. You must ensure that the thermo sensor icon is displayed on the remote screen.
Function Number Setting Value Setting Description
92
(For Cooling)
93
(For Heating)
00 No correction 0.0°F(0.0°C)
01 No correction 0.0°F(0.0°C)
02 -1°F (-0.5°C)
More Cooling / Less Heating
03 -2°F (-1.0°C)
04 -3°F (-1.5°C)
05 -4°F (-2.0°C)
06 -5°F (-2.5°C)
07 -6°F (-3.0°C)
08 -7°F (-3.5°C)
09 -8°F (-4.0°C)
10 +1°F (+0.5°C)
Less Cooling / More Heating
11 +2°F (+1.0°C)
12 +3°F (+1.5°C)
13 +4°F (+2.0°C)
14 +5°F (+2.5°C)
15 +6°F (+3.0°C)
16 +7°F (+3.5°C)
17 +8°F (+4.0°C)
Page 2 of 2
(For
Cooling
)
(For
Heating
)
09
-
8
°
F (
-
4.0
°
10 +1°F (+0.5°C)
Less Cooling
More Heating
11 +2°F (+1.0°C)
12 +3°F (+1.5°C)
13 +4°F (+2.0°C)
14 +5°F (+2.5°C)
15 +6°F (+3.0°C)
16 +7°F (+3.5°C)
17 +8°F (+4.0°C)
* The standard setting temperature control changes depending on outside ambient temperature because it considers the outside heat load in relation with
outside ambient temperature which may require more cooling or more heating. Compared with function 95-01 correction 0.0°F(0.0°C), the room temperature
may possibly be higher in heating operation and lower in cooling operation if room heat load is lower than the capacity that can provide from system.
In case of slim duct type and floor/ceiling type models:
In floor console installations, select “01”
(
… Factory Setting)

Other manuals for Fujitsu ASU12RLF1

Related product manuals