EasyManua.ls Logo

Fujitsu ASU9RLF - Page 4

Fujitsu ASU9RLF
23 pages
Print Icon
To Next Page IconTo Next Page
To Next Page IconTo Next Page
To Previous Page IconTo Previous Page
To Previous Page IconTo Previous Page
Loading...
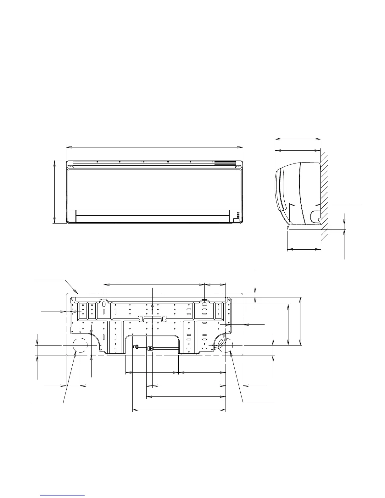
Unit : inch (mm)
INDOOR UNIT
DIMENSIONS
Drain hose
I.D. 17/32 in. (13.8 mm), O.D. 5/8 to 21/32 in. (15.8 to 16.7 mm)
Drain hose : L=20-15/32 in. (520mm)
8-1/16 (205) : Installed state
*1: Vertical flap is downward
8 (203)
5-1/2 (140) *1
13/32 (10) *1
5-23/32 (145) *1
31-3/32 (790)
11-1/32 (280)
3-11/16
(94)
2-1/16 (52)
3-1/16 (78)
ø2-9/16 (65)
for pipe inlet
ø2-9/16 (65)
for pipe inlet
Outline of unit
12-23/32 (323)
13-29/32 (353): Gas pipe
16-11/32 (415): Liquid pipe
12-7/8 (327)
9-11/32 (237)
17-23/32 (450)
8-7/32 (209)
2-7/16
(62)
23/32 (18)
1-27/32 (47)
1-27/32
(47)
7-1/4 (184)
8-15/32 (215)
23/32 (18)
3-7/32
(82)
2010.08.04 3

Other manuals for Fujitsu ASU9RLF

Related product manuals