EasyManua.ls Logo

FUNAI D8A-M1000DB - Page 27

FUNAI D8A-M1000DB
68 pages
Print Icon
To Next Page IconTo Next Page
To Next Page IconTo Next Page
To Previous Page IconTo Previous Page
To Previous Page IconTo Previous Page
Loading...
1-11-6
E8GA0BLD
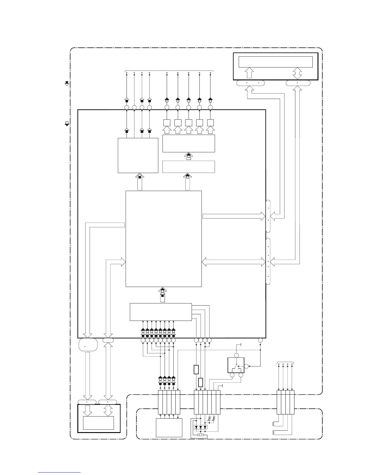
Digital Signal Process Block Diagram
C16
D18
A17
B15
DVD-LD 8
CD-LD 10
PD-MONI 7
FS(+) 2
FS(-) 3
TS(+) 1
TS(-) 4
CN201
CN201
CN201
IC101 (DIGITAL SIGNAL PROCESS)
FS
FS(+)
CD/DVD
FS(-)
TS(+)
TS(-)
TS
DETECTOR
CD/DVD 19
Q251,Q252
AMP
Q253,Q254
AMP
GND(DVD-PD)
6
GND(CD-PD)
5
GND(LD)
9
RF
SIGNAL
PROCESS
AUDIO
I/F
VIDEO
I/F
VIDEO
ENCODER
SDRAM
100
115
116
113
114
106
104
103
105
62
152
151
146
144
IC103 (FLASH ROM)
FLASH
ROM
FDQ (0-15)
FADR(0-19)
SDRAM DATA(0-15)
PICK-UP
UNIT
TO DVD SYSTEM
CONTROL/SERVO
BLOCK DIAGRAM
DVD MAIN CBA UNIT
IC503 (SDRAM)
SDRAM DATA(0-15)
SDRAM ADDRESS(0-10)
2
13
42
53
~
~
22
26
29
34
~~
159
178
~
99
98
97
1~4
17 18 215 216
7~14
21~30
21234~42
1
9
25
16
48
~~
29
36
45
38
~~
DIGITAL
SIGNAL
PROCESS
EXT MEMORY DATA(0-15)
EXT MEMORY ADDRESS(0-19)
SDRAM ADDRESS(0-10)
D/A
D/A
131
139
G
C
VIDEO-G
VIDEO-C
D/A
129
R
VIDEO-R
D/A
130
B
VIDEO-B
Y
VIDEO-Y
D/A
138
SPDIF
DVD-AUDIO-MUTE
DVD-AUDIO(R)
DVD-AUDIO(L)
TO DVD
VIDEO/AUDIO
BLOCK
DIAGRAM
DVD AUDIO SIGNAL
DVD VIDEO SIGNAL
IC201
(SW)
4
1
6
3
198
203
~
194 206
209
~

Related product manuals