EasyManua.ls Logo

FUNAI D8A-M1000DB - Page 36

FUNAI D8A-M1000DB
68 pages
Print Icon
To Next Page IconTo Next Page
To Next Page IconTo Next Page
To Previous Page IconTo Previous Page
To Previous Page IconTo Previous Page
Loading...
1-12-8
E8GA0SCM6
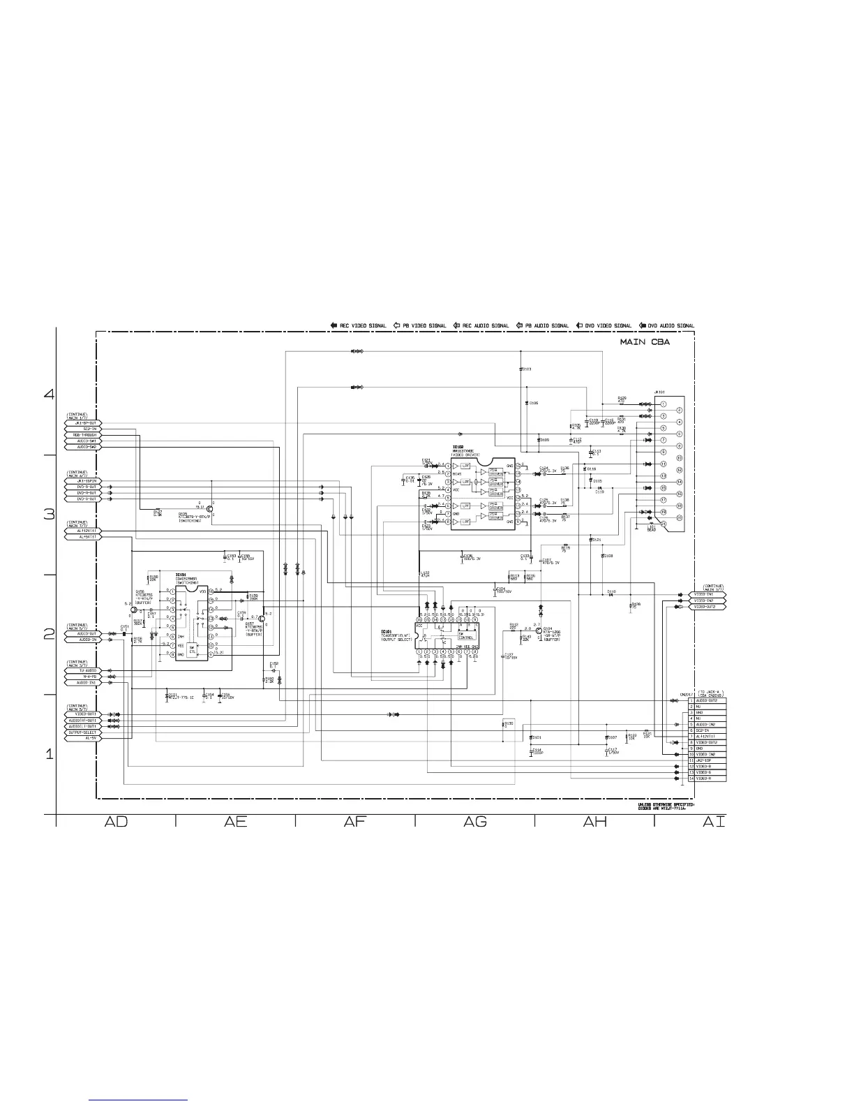
Main 6/7 Schematic Diagram < VCR Section >