EasyManua.ls Logo

FUNAI DPVR-2600 - Page 50

FUNAI DPVR-2600
99 pages
Print Icon
To Next Page IconTo Next Page
To Next Page IconTo Next Page
To Previous Page IconTo Previous Page
To Previous Page IconTo Previous Page
Loading...
1-10-50
1-10-51
1-10-52
H9300SCD4
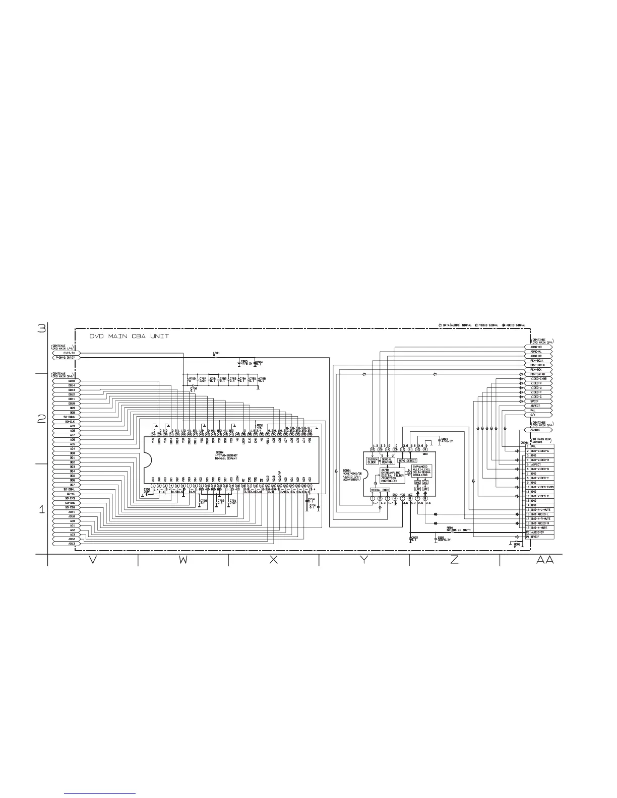
DVD Main 4/4 Schematic Diagram < DVD Section >

Related product manuals