EasyManua.ls Logo

GE JGBP86SEMSS - Page 25

GE JGBP86SEMSS
34 pages
Print Icon
To Next Page IconTo Next Page
To Next Page IconTo Next Page
To Previous Page IconTo Previous Page
To Previous Page IconTo Previous Page
Loading...
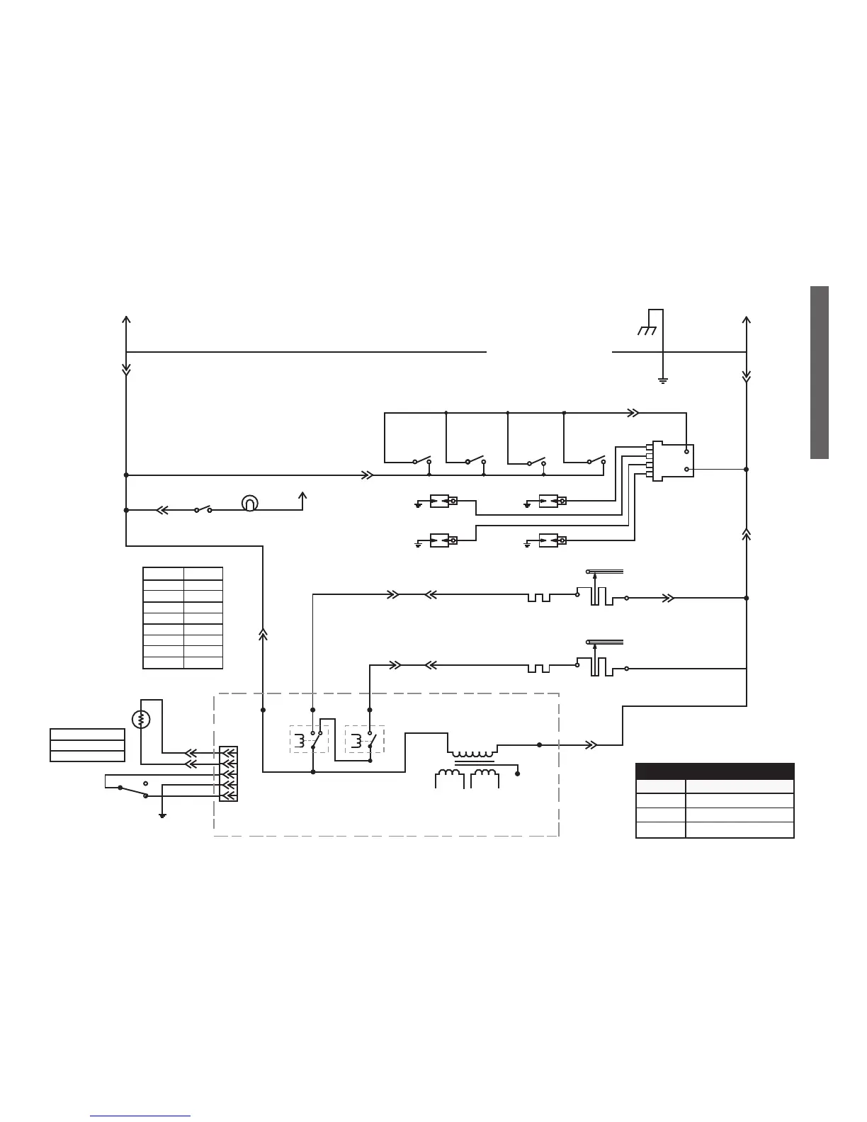
D1
COM
NC
SW
LCH
NO
1
BA
BR
F2
F1
5
D6
GND
N
4 OHMS.
32VAC
4 OHMS.
21VAC
120VAC
135 OHMS.
B1
ELECTRONIC
CONTROL BRD.
GLOWBAR
BAKE
D5
A1
L-1
D4
C1
E1
RR
GLOWBAR
BROIL
LR
RR SW
RF SW
RF
RIGHT IGNITER
LF SW
LF
LEFT IGNITER
D3
LATCH SWITCH/DOOR SWITCH
NO = LOCKED
NC = UNLOCKED
A2
VALVE
CONTROL
E2
VALVE
CONTROL
D1
SPARK
MODULE
LR SW
C2
N
L
N
SEE RATING PLATE
FOR ELECTRICAL RATING
W
W
S
Y
O
Y
W
W
R
R
O
R
N
RK SW
OV LT
O
OV
O W
N
R
W W
R
W
N
W
W
W
W
N
W
W
W
W
W
W
JGBP30BEA SCHEMATIC
L-1
COLOR SYMBOL
RED R
WHITE W
ORANGE O
GREEN G
YELLOW Y
VIOLET V
BLUE N
GRAY S
– 23 –
OVEN TEMP SENSOR
1100W at 75°F.
2634W at 865°F.
Terminals Voltage (AC)
L1 to N 120 VAC at all times
BA to N 120 VAC in BAKE mode
BR to N 120 VAC in BROIL mode
ERT CONTROL VOLTAGES

Related product manuals