EasyManua.ls Logo

GE PVD28BYNFS

GE PVD28BYNFS
136 pages
To Next Page IconTo Next Page
To Next Page IconTo Next Page
To Previous Page IconTo Previous Page
To Previous Page IconTo Previous Page
Loading...
22 49-1000332 Rev. 0
INSTALLATION INSTRUCTIONS
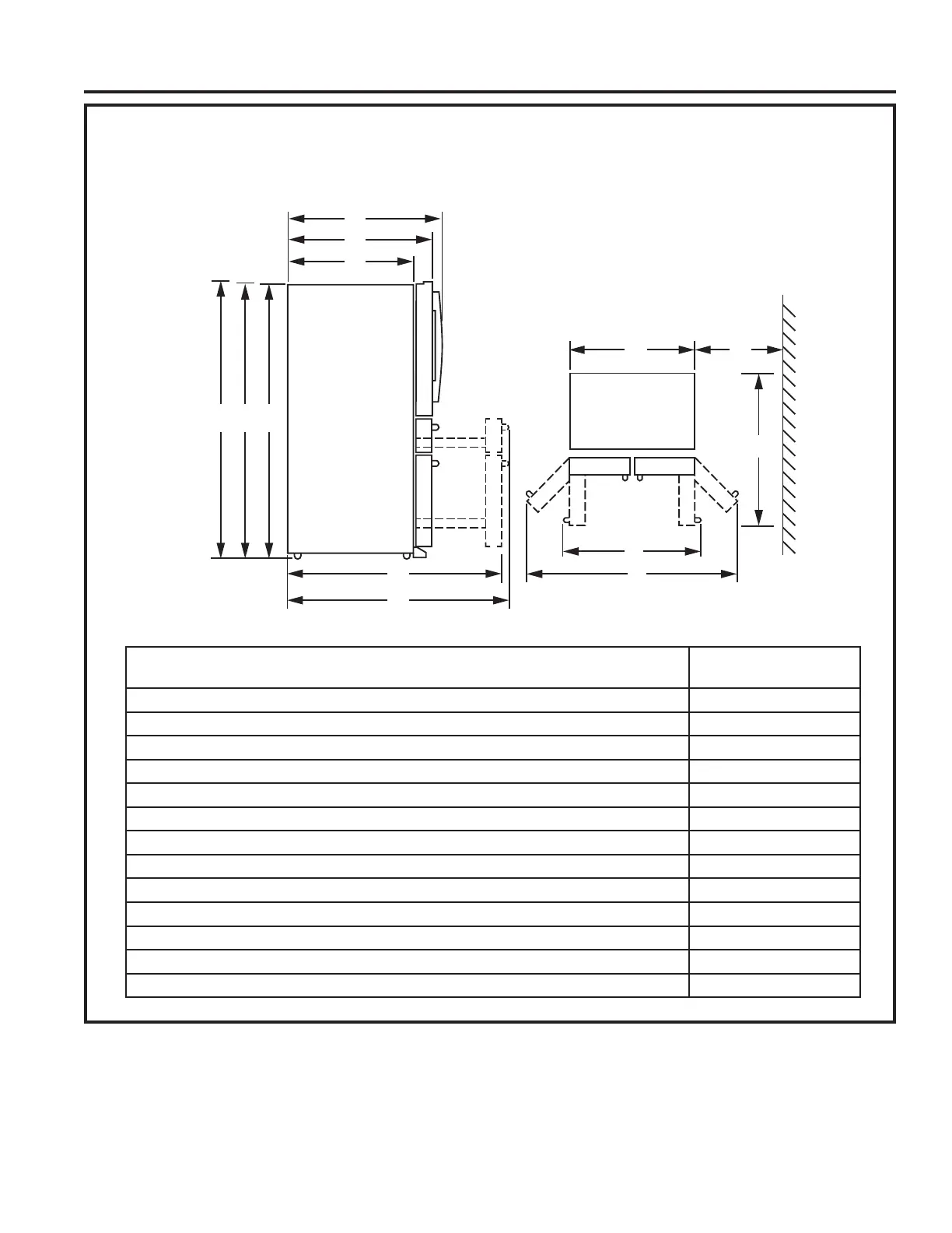
DIMENSIONS
Installation Instructions
NOTE: It is recommended that the floor be protected with a plastic covering throughout the installation process.
NOTE: Not recommended for installation on carpeted flooring.
X
D
HK
E
F
Y
CBA
I
J
G
Standard Depth
Models
2YHUDOO+HLJKWWR7RSRIWKH'RRU$ ´PP
Height to Top of Hinge Cover (B) ´PP
Height to Top of Case (C) ´PP
&DVH'HSWKZLWKRXW'RRU' ´PP
&DVH'HSWKZLWK'RRUOHVV'RRU+DQGOH( ´PP
&DVH'HSWKZLWK'RRUDQG+DQGOH) ´PP
'HSWKZLWK5HIULJHUDWRU'RRU2SHQ* ´PP
Width (H) ´PP
:LGWKZLWK'RRU2SHQZLWK+DQGOH, ´PP
:LGWKZLWK'RRUV)XOO\2SHQ- ´PP
0LQ'LVWDQFH%HWZHHQ&DVHDQG:DOOWR$OORZ'RRUVWR)XOO\2SHQ. ´PP
'HSWKZLWK)UHH]HU'RRU&RPSOHWHO\2SHQZLWKRXW+DQGOH; ´PP
'HSWKZLWK)UHH]HU'RRU&RPSOHWHO\2SHQZLWK+DQGOH< ´PP

Table of Contents

Related product manuals