EasyManua.ls Logo

GE PVD28BYNFS

GE PVD28BYNFS
136 pages
To Next Page IconTo Next Page
To Next Page IconTo Next Page
To Previous Page IconTo Previous Page
To Previous Page IconTo Previous Page
Loading...
22 49-1000329 Rev. 0
INSTRUCTIONS D’INSTALLATION
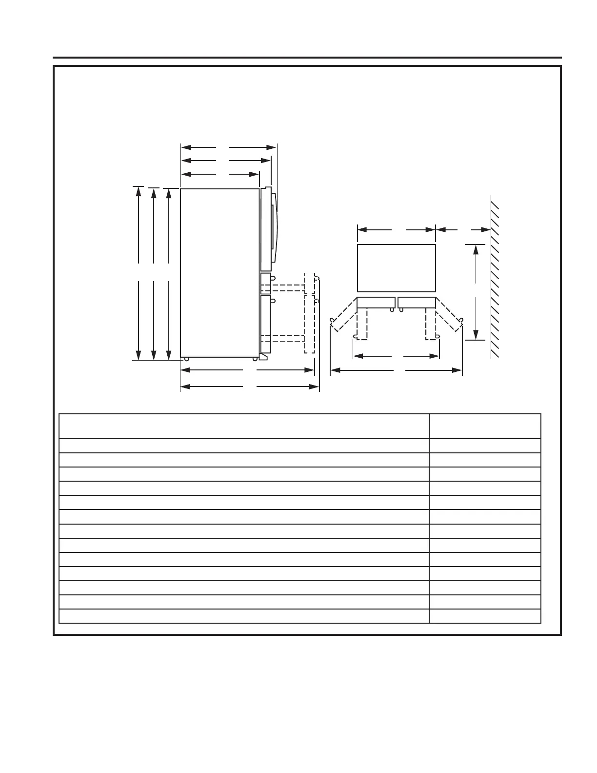
DIMENSIONS
Instructions d’installation
REMARQUE : Il est recommandé que le plancher soit protégé par un recouvrement plastique durant toute la durée de
l’installation.
REMARQUE : Non recommandé pour une installation sur moquette.
X
D
HK
E
F
Y
CBA
I
J
G
Modèles de profondeur
standard
Hauteur totale jusqu’au dessus de la porte (A)
70” (1775 mm)
Hauteur jusqu’au dessus du couvercle de charnière (B)
69-13/16” (1772 mm)
Hauteur jusqu’au dessus de la carrosserie (C) 68-5/8” (1742 mm)
Profondeur de carrosserie sans porte (D) 29-3/4” (755 mm)
Profondeur carrosserie avec porte, moins poignée porte (E) 34-9/16” (878 mm)
Profondeur carrosserie avec porte et poignée (E) 37-3/16” (943 mm)
Profondeur avec porte réfrigérateur ouverte à 90° (G) 48-11/16” (1236 mm)
Largeur (H) 35-3/4” (908 mm)
Largeur avec porte ouverte à 90°, avec poignée (I) 45-1/8” (1146 mm)
Largeur avec portes totalement ouvertes (J) 63-1/2” (1613 mm)
Dist. min. entre carrosserie et mur pour portes totalement ouvertes (K) 13-3/4” (350 mm)
Profondeur avec porte congélateur totalement ouverte, avec poignée (X) 53-15/16” (1369 mm)
Profondeur avec porte congélateur totalement ouverte, sans poignée (Y) 56-3/8” (1431mm)

Table of Contents

Related product manuals