EasyManua.ls Logo

GE Side by Side Refrigerators - Step 8: Leveling the Refrigerator; Step 9: Secure to Cabinetry

GE Side by Side Refrigerators
28 pages
Print Icon
To Next Page IconTo Next Page
To Next Page IconTo Next Page
To Previous Page IconTo Previous Page
To Previous Page IconTo Previous Page
Loading...
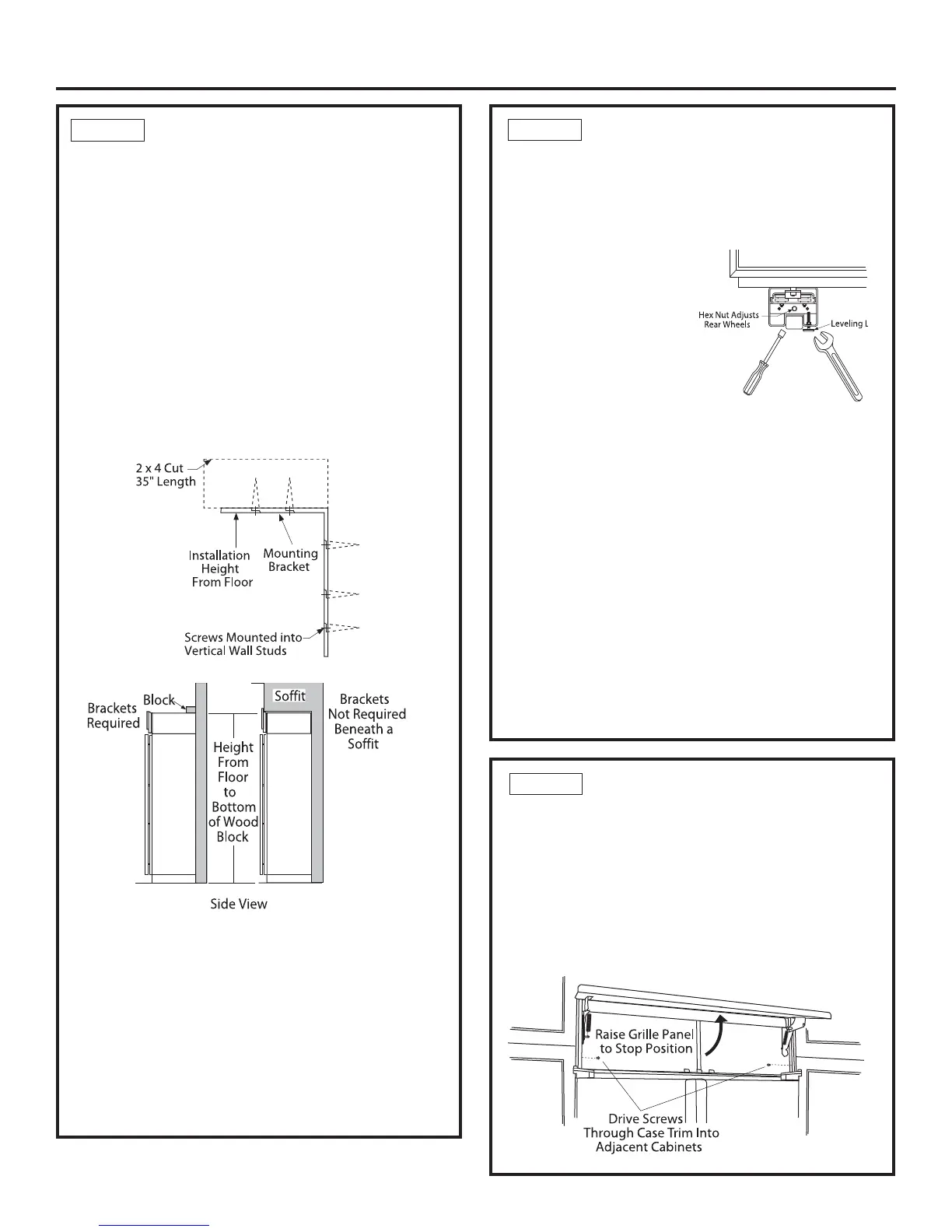
Standard Installation Only
• Cut a 2” x 4” block, 35” long and secure the block to
the mounting brackets provided using #12 or #14
wood screws.
• Secure the bracket with wood block to the back wall
so that it is 84” from the finished floor. Use #12 or #14
wood screws. See the illustration.
• The screws must penetrate at least one inch into the
vertical wall studs.
IMPORTANT NOTE FOR STANDARD INSTALLATION:
When the refrigerator is installed under a soffit or if
there is not enough height for this method of security,
brackets cannot be used. Proceed to step 8 to level the
refrigerator and then to step 9 to secure refrigerator to
cabinets. See step 8 if you have metal wall studs. The
refrigerator must be secured to prevent tipping.
Connect power cord:
• Before pushing the refrigerator into the opening, plug
the power cord into the receptacle. Open the grille
panel and reach into the opening at the back to grasp
the power cord. Pull the power cord into the opening
as you push the refrigerator back.
• Gently push refrigerator into the opening with hands
against front corners.
STEP 7
ANTI-TIP PROCEDURE (Cont.)
18
STEP 8 LEVEL REFRIGERATOR
All models have 4-point leveling. The front is supported
by leveling legs, the rear is supported by adjustable
wheels. Both are accessible from the front of the
refrigerator.
• To level the back of the refrigerator, turn the 7/16”
hex nut located above
the front wheels. Turn
clockwise to raise or
counterclockwise to lower
the refrigerator.
• For front leveling, use a
1-1/4” open-end wrench.
• Adjust height of
refrigerator to match
installation cutout opening
84-1/2”. The refrigerator should be level and plumb
with
cabinetry
.
NOTE (Flush Installation Only): Raise refrigerator until
the case top comes in contact with the 1/2” spacer
block mounted to the underside of the cabinet soffit.
Refrigerator should be level at fully raised position.
NOTICE: The rear leveling wheels and front leveling
legs are limited to a maximum height adjustment of 1”.
If the installation requires more than 84-1/2” height,
the installer should elevate the refrigerator on a sheet
of plywood or runners. Cabinetry trim could also be
added across the top of the opening to shorten the
opening. If you attempt to raise the refrigerator more
than 1”, you will damage the front leveling legs and
the rear leveling wheels. Make adjustments in small
increments.
Installation Instructions
STEP 9 SECURE REFRIGERATOR
TO CABINETRY
Whenever possible, perform this step for anti-tip
security, or when anti-tip brackets cannot be used.
The refrigerator must be secured to prevent tipping.
• Raise the grille panel to access the machine
compartment.
For flush inset installation only, drill a hole in the case
top and drive a screw through the top into the adjacent
1/2” block.

Related product manuals