EasyManua.ls Logo

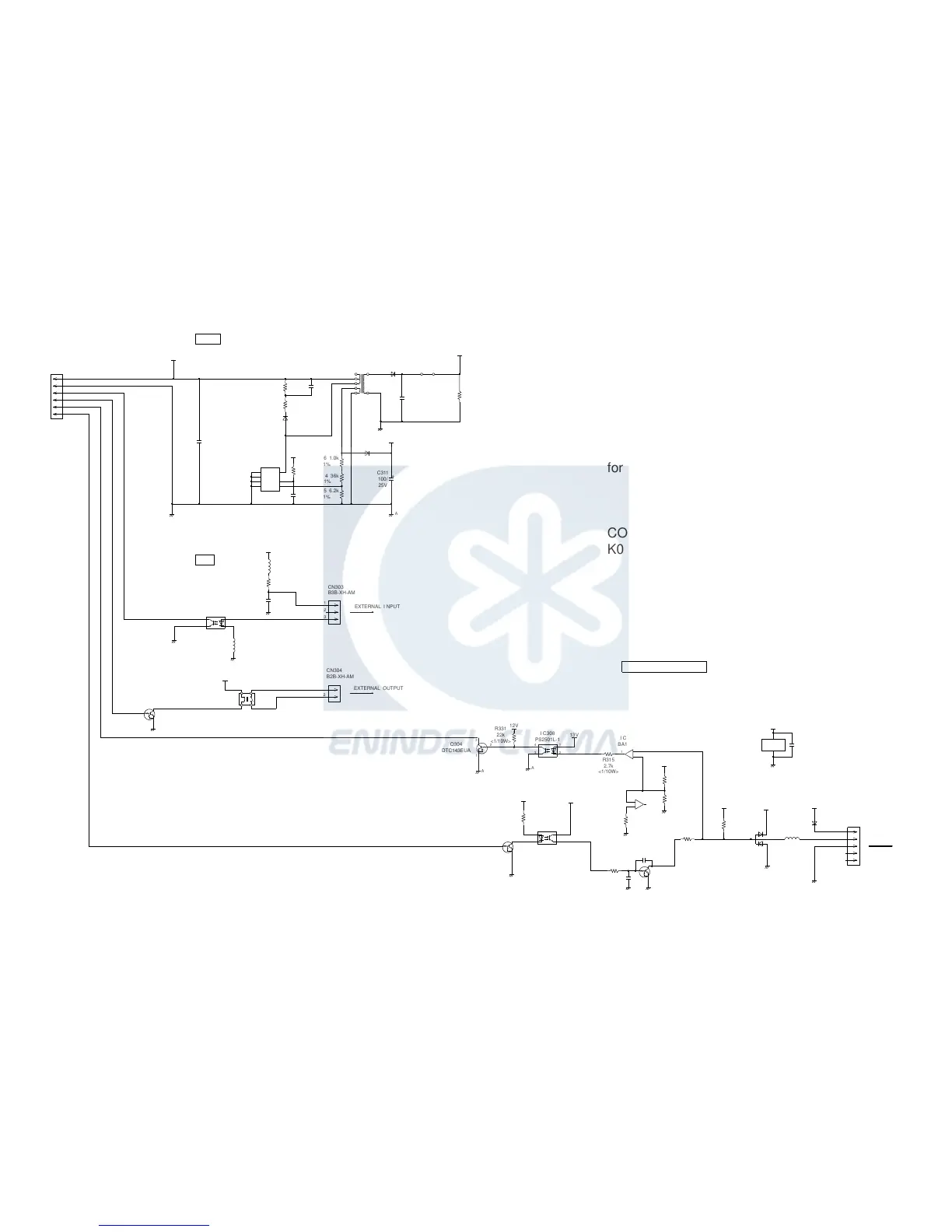
General AOHG18LAC2 - Communication PCB Schematic; Optional Communication Kit

General AOHG18LAC2
80 pages
Print Icon
To Next Page IconTo Next Page
To Next Page IconTo Next Page
To Previous Page IconTo Previous Page
To Previous Page IconTo Previous Page
Loading...
13V
-
+
3
2
1
+
-
5
6
7
3
4
2
12
3
1
2
3
1
2
3
41
2
3
1
3
2
1
4
8
A
1
2
3
4
5
13V
13V
13V
L303
0R0
D307
D1F60
R320
390
<1/4W>
1%
D306
DAN217U
R317
10k
<1/10W>
1%
13V
C304
0.1
<F>
I C304
R318
15.4k
<1/10W>
1%
R319
28k
<1/10W>
1%
I C304-2
BA10393F
C310
1000p
<R>
Q303
DTC143EUA
C309
0.01
<B>
R330
2.7k
<1/10W>
I C309
PS2501L-1
Q302
DTC143EUA
13V
12V
R316
1.2k
<1/4W>
12V
13V
I C308
PS2501L-1
R315
2.7k
<1/10W>
I C304-1
BA10393F
A
A
R331
22k
<1/10W>
Q304
DTC143EUA
R322
10k
<1/10W>
CN305
B05B-XASK-1-A
C313
0.01
<B>
13V
R312
1.2k
<1/4W>
L301
0R0
CN303
B3B-XH-AM
1
2
3
A
I C306
PS2501L-1
L302
0R0
4
3 2
1
12V
12V
+
C311
100/
25V
D302
RF101L2S
A
12V
R303
18k
<1/10W>
C305
1.0
<B>
R306 1.0k
1%
R304 36k
1%
R305 6.2k
1%
I C301
LNK603PG
R301
390k
<1/4W>
R302
270
<1/4W>
D301
UF4007
C302
1000p
<E>
C301
4.7/
450V
+
4
2
1
5
6
7
8
S
S
S
S
D
FB
BP_M
390V
A
13V
JM303
0R0
R309
18k
<1/10W>
C306
100/
25V
+
D303
RF101L2S
T301
SW161-1
10
6
4
5
3
2
1
2
3
1
A
Q301
DTC123EUA
K301
G5NB-1A
1
3
4
2
1
2
CN304
B2B-XH-AM
CN301
SJH20-08WSF
8
5
4
3
2
1
POWER
GND
HA / EX I N
HA / EX OUT
WIRED I N
WIRED OUT
EXTERNAL OUTPUT
EXTERNAL I NPUT
TO WIRED
REMOTE CONTROL
POWER
E. X.
WIRED REMOTE CONTROL UNIT
2010.09.08 21
(Option)
Communication kit
UTY-XCBXZ1
for
ASHG07LJCA
ASHG09LJCA
ASHG12LJCA
COMMUNICATION PCB
K08DG-0801HSE-CA0
TO MAIN PCB
The limitation optional of ASYG07, 09 and 12LJCA
www.enindel.com

Related product manuals