EasyManua.ls Logo

General ASG18ABAJ - Models ASG18 RBAJ, ASG30 RBAJ

General ASG18ABAJ
41 pages
To Next Page IconTo Next Page
To Next Page IconTo Next Page
To Previous Page IconTo Previous Page
To Previous Page IconTo Previous Page
Loading...
- 16 -
2004.10.19
C12
0.1
<F>
R3
1.0K <1/10W>
CN4
B4P7S-VH-B
D4 D1F60
+
C8
10/25V
R1 10K
<1/2W>
D2
MTZJ15C
14V
R2 10K
<1/4W>
Q1
2SD1191
D3
D1F60
+
C9
10/
25V
+
C10
1000
/25V
5V
5V
IC2
7805
C11
0.1
<F>
C14
100
/25V
+
C15
0.1
<F>
IO
G
C13
1000P
<R>
14V
NC
NC
R4 4.7K
<1/10W>
Q2
DTC124EUA
R5
10K
<1/10W>
10K x 2
<1/10W>
R45
R46
IC5 (5/7)
uPA2003
SSR1
G3MC
201PL-VD
+
-
K 1
K1
JQ1-12V
14V
K 5
K 4
K 3
K 2
VA3
470V <TNR>
CN1
B2P3-VH-B
W6
COMP
K5
G5NB-1A
E1
W2
C2
0.22 <RE>
C5
C6
0.022 x 2
<YE>
N
L
W1
FH1
FH2
F1
3.15A
<BET>
SA1
RA-362M
VA2
470V
<TNR>
VA1
470V <TNR>
C1
0.22 <RE>
5V
W5
W3
4WV
H I
LO
W4
K4
G5NB-1A
CR2
120/0.2
CR2
120/0.2
K2
G5NB-1A
K3
JQ1-12V
5V
C22
0.1
<F>
R12
10K <1/10W>
IC3
BR93LC46
5V
LF1
ELF17N015A
10K x 3
<1/10W>
R22
R24
R23
JM3
JM2
JM1
R21
R20
R19
1.0K x 3
<1/10W>
C27
C28
C26
0.01 x 3
<B>
1.0K x 3
<1/10W>
R17
R18
R16
JM6
JM5
JM4
1.0K x 3
<1/10W>
R15
R14
R13
C24
C23
C25
0.01 x 3
<B>
X1
5.00MHz
<CSTS>
69
70
61
33
67
4
55
54
53
58
57
56
13
12
11
10
20
19
23
22
52
51
9
8
64
80
78
73
7
75
68
74
59
63
49
47
46
45
76
77
27
28
29
30
31
32
34
35
40
41
42
43
71
65
17
16
15
14
50
60
VCC
NC
NC
GND
D0
D1
SK
CS
4
3
2
1
8
7
6
5
C21
RC4
RC3
RC2
1000P x 4
<R>
Q3
2SC982
D6
DA226U
R6
10K
<1/10W>
R7
10K
<1/10W>
15
16
13
14
12
3
5
4
1
2
CN3 B3B-XASK-1-A
D1
D2SB20
C7
2200
/50V
+
CN2
B2B-XARK-1-A
SECONDARY
PRIMARY
POWER
TRANSFORMER
EZ-0018HSE-T
IC6 (7/7)
uPA2003
C34
1000P
<R>
C33
1000P
<R>
R27
1.0K <1/10W>
R28
1.0K <1/10W>
R25
10K
<1/10W>
(1%)
R26
49.9K
<1/10W>
(1%)
C30
0.1
<F>
C29
0.1
<F>
5V
DTC124EUA x 3
Q7
Q6
Q5
Q4
DTA143
C35
1000P <R>
R42 47 <1/10W>
C36
0.01 <B>
R41 1.0K <1/10W>
5V
10K x 2
<1/10W>
R40
R39
+
C42
10/
25V
C41
0.01
<F>
CN9
S08B-PASK-2
CN10
B2B-XASK-1-A
CN11
B2B-XAKK-1-A
14V
CN6
S10B-PASK-2
14V
IC7 (4/7)
uPA2003
CN7
S05B-PASK-2
5V
10K x 4
<1/10W>
CN13
BS5P-SHF-1AA
R37
R38
R36
R35
R31
R32
R33
R34
1.0K x 4
<1/10W>
14V
11
14
13
12
6
5
4
3
14
15
16
10
13
12
10
11
1
6
5
4
3
2
7
7
IC7 (1/7)
uPA2003
R11
RC1
10K
<1/10W>
C37
C38
C39
C40
0.01 x 4
<B>
5V
C17
0.1 <F>
IC4
PST600C
5V
R8 10K
<1/10W>
C16
0.1 <F>
IC7-1
uPA2003
O
I
G
R44 1.0K
<1/10W>
R43 1.0K
<1/10W>
116
BZ1
PKM13EPY-4000-TF01
B Z
TEST
1-1
1-3
GRAY
UL1015 AWG22
UL1015
AWG16
GREEN
WHITE
BLACK
UL1015
AWG14
UL1015
AWG14
RED
BLUE
BROWN
UL1015
AWG22
UL1015
AWG22
UL1015
AWG22
TERMINAL
BOARD
1
2
3
4
5
6
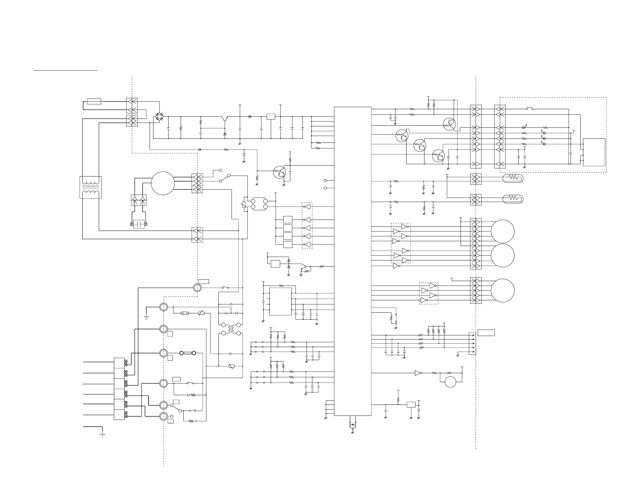
OUTDOOR UNIT
JM1 : FAN SWITCHING
JM2 : CUSTOM CODE SWITCHING-1
JM3 : CUSTOM CODE SWITCHING-2
JM4 : AUTO RESTART SWITCHING
JM5 : ROOM TEMPERATURE CORRECTION
( HEATING OPERATION )
JM6 : ROOM TEMPERATURE CORRECTION
( HEATING OPERATION )
13-1
13-2
13-3
13-4
13-5
7-1
7-2
7-3
7-4
7-5
6-1
6-2
6-3
6-4
6-5
6-6
6-7
6-8
6-9
6-10
11-1
11-2
10-2
10-1
9-1
9-2
9-3
9-4
9-5
9-6
9-7
9-8
UL1430
AWG26
GRAY
GRAY
GRAY
GRAY
GRAY
GRAY
GRAY
PURPLE
BLACK
BLACK
GRAY
GRAY
PINK
UL1061
AWG26
GRAY
GRAY
GRAY
GRAY
GRAY
GRAY
GRAY
GRAY
GRAY
UL1061
AWG26
PINK
GRAY
GRAY
GRAY
GRAY
CN201 S08B-PASK-2
C201
0.1
<F>
5V
C202
10/
25V
+
SLR-325 x 3
C203
0.01
<F>
5V
R204
R203
R201
D202
SLR-325
<RED>
R202
330 x 4 <1/4W>
D204
<ORG>
D201 <ORG>
D203 <GRN>
PHA201
SBX1810
VCC
OUT
GND1
GND2
SW201
EVQ-PAG-04K
201-1
201-2
201-3
201-4
201-5
201-6
201-7
201-8
ROOM TEMPERATURE THERMISTOR
PIPE TEMPERATURE THERMISTOR
INDICATOR PCB
EZ-0018HSE-D
I C 1
uPD780058
(uPD78F0058)
-A14-9EU
CONTROLLER PCB ASSEMBLY ( MAIN PCB )
ASG18RBAJ : EZ-0034HSE-C
ASG30RBAJ : EZ-0010CHSE-C
UL1015
AWG20
RED
BLUE
RED
WHITE
GRAY
GRAY
RED
RED
3-3
3-1
2-1
2-2
YELLOW
BLACK
WHITE
WHITE
FAN CAPACITOR
1.3 uF
UL1015 AWG22
PURPLE
UL1015 AWG22 PURPLE
UL1015
AWG20
31
UL1430 AWG22
UL1430 AWG22
THERMAL FUSE
FAN
MOTOR
4-1
4-2
4-3
4-4
DIFFUSER
FLAP
U - D
LOUVER
L - R
Models : ASG18RBAJ
ASG30RBAJ

Related product manuals