EasyManua.ls Logo

General ASG18ABAJ - Model ASG24 RBAJ

General ASG18ABAJ
41 pages
To Next Page IconTo Next Page
To Next Page IconTo Next Page
To Previous Page IconTo Previous Page
To Previous Page IconTo Previous Page
Loading...
- 17 -
2004.10.19
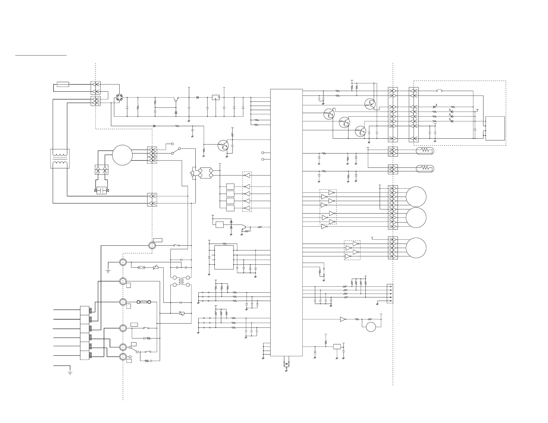
INDICATOR PCB
EZ-0018HSE-D
5V
SW201
EVQ-PAG-04K
PHA201
SBX1810
5V
C201
0.1
<F>
C202
10/
25V
+
D202
SLR-325<RED>
D204<ORG>
D203<GRN>
D201<ORG>
SLR-325 x 3
R202 330
<1/4W> x 4
R204
R201
R203
CN201 S08B-PASK-2
C203
0.01
<R>
Vcc
OUT
GND1
GND2
CN201-1
CN201-2
CN201-8
CN201-7
CN201-6
CN201-5
CN201-4
CN201-3
UL1430
AWG26
GRAY
GRAY
GRAY
GRAY
GRAY
GRAY
GRAY
GRAY
PURPLE
GRAY
BLACK
BLACK
ROOM TEMPERATURE THERMISTOR
PIPE TEMPERATURE THERMISTOR
PINK
UL1061
AWG26
GRAY
GRAY
GRAY
GRAY
GRAY
GRAY
GRAY
GRAY
GRAY
UL1061
AWG26
PINK
GRAY
GRAY
GRAY
GRAY
DIFFUSER
FLAP
U - D
LOUVER
L - R
CN9
S08B-PASK-2
C42
10/
25V
+
C41
0.01
<F>
CN9-1
CN9-8
CN9-7
CN9-6
CN9-5
CN9-4
CN9-3
CN9-2
CN10
B2B-XASK-1-A
CN11
B2B-XAKK-1-A
CN10-1
CN10-2
CN11-2
CN11-1
14V
5V
CN6
S10B-PASK-2
CN6-1
CN6-10
CN6-9
CN6-8
CN6-7
CN6-6
CN6-5
CN6-4
CN6-3
CN6-2
CN7
S05B-PASK-2
CN7-1
CN7-3
CN7-4
CN7-5
CN7-2
14V
5V
CN13
BS5P-SHF-1AA
CN13-1
CN13-2
CN13-3
CN13-4
CN13-5
14V
TEST
5V
5V
R8 10K
<1/10W>
C17
0.1
<F>
I C4
PST600C
C16
0.1
<F>
OI
G
C38
C40
C39
C37
0.01 <B> x 4
5V14V
Q4
DTA143
Q7
Q6
Q5
DTC124EUA x 3
5V
R40
R39
10K <1/10W> x 2
R41 1.0K
<1/10W>
C35
1000P
<R>
R42 47 <1/10W>
C36 0.01
<B>
C33
1000P
<R>
R27 1.0K
<1/10W>
R25 10K
<1/10W>
(1%)
C29
0.1
<F>
R28 1.0K
<1/10W>
C34
1000P
<R>
C30
0.1
<F>
R26 49.9K
<1/10W>
(1%)
I C6 (7/7)
uPA2003
I C7 (1/7)
uPA2003
I C7 (4/7)
uPA2003
R11
RC1
10K
<1/10W>
10K <1/10W> x 4
11
14
13
12
6
5
4
3
R35
R38
R37
R36
R31
R34
R33
R32
1.0K <1/10W> x 4
I C7-1
uPA2003
R43 1.0K
<1/10W>
R44 1.0K
<1/10W>
1
16
10
7
1
2
3
4
5
6
7
16
15
14
13
12
11
10
BZ1
PKM13EPY-4000-TF01
B Z
X1
5.00MHz
<CSTS>
69 70
61
33
67
4
55
54
53
58
57
56
13
12
11
10
20
19
23
22
52
51
9
8
64
80
78
73
7
75
68
74
59
63
49
47
46
45
76
77
27
28
29
30
31
32
34
35
40
41
42
43
71
65
17
16
15
14
50
60
R15
R13
R14
1.0K <1/10W>
x 3
0.01 <B> x 3
C25
C23
C24
0.01 <B> x 3
C28
C26
C27
1.0K <1/10W>
x 3
5V
R20
R19
R21
I C3
BR93LC46
5V
1000P <R>
x 4
RC2
RC3
RC4
C21
C22
0.1
<F>
10K <1/10W> x 3
R22
R24
R23
JM3
JM1
JM2
10K <1/10W>
x 3
R16
R18
R17
JM6
JM5
JM4
JM1 : FAN CHANGER
JM2 : REMOTE CONTROL CUSTOM-1
JM2 : REMOTE CONTROL CUSTOM-2
JM4 : AUTO RESTART
JM5 : HEATING TEMPERATURE CORRECTION
JM6 : HEATING TEMPERATURE CORRECTION
VA1
470V <TNR>
C1
0.22 <RE>
14V
5V
R12 10K
<1/10W>
Vcc
NC
NC
GND
D0
D1
SK
CS
8
7
6
5
4
3
2
1
R6 10K
<1/10W>
R7 10K
<1/10W>
Q3
2SC982
D6 DA226U
K 5
K 1
K 2
K 3
K 4
I C5 (5/7)
uPA2003
14V
SSR1
G3MC
201PL-VD
+
-
15
16
13
12
14
1
4
5
3
2
NC
NC
C13
1000P
<R>
5V
R4
4.7K
<1/10W>
C12
0.1
<F>
R5
10K
<1/10W>
Q2
DTC124EUA
10K <1/10w> x 2
R45
R46
I C2
7805
+
D3
D1F60
C15
0.1
<F>
C14
100/
25V
+
C11
0.1
<F>
C10
1000
/25V
C9
10/
25V
D2
MTZJ15C
+
Q1
2SD1191
R2 10K
<1/4W>
+
C8
10/25V
R3 1.0K
<1/10W>
D4 D1F60
R1
10K
<1/2W>
C7
2200
/50V
+
D1
D2SB20
CN3
B3B-XASK-1-A
CN2
B3B-XARK-1-A
THERMAL FUSE
POWER
TRANSFORMER
EZ-0018HSE-T
PRIMARY
SECONDARY
BLACK
YELLOW
3
1
UL1430 AWG22
UL1430 AWG22
CN2-1
CN2-2
CN3-3
CN3-1
GRAY
GRAY
RED
RED
CN4
B4P7S-VH-B
CN4-1
CN4-4
CN4-3
CN4-2
UL1015
AWG20
BLUE
RED
WHITE
FAN
MOTOR
K1
JQ1-12V
VA3
470V
<TNR>
CN1
B2P3-VH-B
CN1-1
CN1-3
UL1015 AWG22
UL1015 AWG22
PURPLE
PURPLE
UL1015
AWG20
WHITE
WHITE
FAN CAPACITOR
1.3uF
K5
G5NB-1A
C2
0.22 <RE>
C5 C6
0.022 <YE>
x 2
LF1
ELF17N015A
TERMINAL BOARD
BROWN
BLUE
RED
E
UL1015
AWG22
UL1015
AWG22
UL1015
AWG14
UL1015
AWG22
BLACK
UL1015
AWG16
UL1015
AWG14
WHITE
GREEN
E1
W2
W1
L
N
W5
4WV
H I
LO
W3
W4
K3
JQ1-10V
FH1
FH2
F1
3.15A <BET>
COMP
W6
VA2
470V
<TNR>
SA1
RA-362M
UL1015 AWG22
GRAY
K4
G5NB-1A
CR2
120/0.2
CR1
120/0.2
K2
G5NB-1A
1
5
4
3
2
6
TO OUTDOOR UNIT
I C 1
CONTROLLER PCB ASSEMBLY ( MAIN PCB )
EZ-003YHSE-C
uPD780058BGK
-A14-9EU
Model : ASG24RBAJ

Related product manuals