EasyManua.ls Logo

General ASH7USBCW - Error Display and Troubleshooting; Troubleshooting Check Table; LED Indication Codes

General ASH7USBCW
19 pages
Print Icon
To Next Page IconTo Next Page
To Next Page IconTo Next Page
To Previous Page IconTo Previous Page
To Previous Page IconTo Previous Page
Loading...
5V
5V
SW1
MANUAL AUTO
SWITH
R29 10K
<1/10W>
5V
C27
0.1
<F>
R27
10K
<1/10W>
(1%)
R26
49.9K
<1/10W>
(1%)
CN2 150-103-86176
CN3 150-503-96077
ROOM TEMPERATURE THERMISTOR
PIPE TEMPERATURE THERMISTOR
CN2-1 BLACK
CN2-2 BLACK
CN3-2 GRAY
CN3-1 GRAY
5
2
1
3
4
R28 10K
<1/10W>
RESET
IC3
BD4742G
R201
47 <1/4W>
+
OPERATE
RED
TIMER
GREEN
SWING
ORANGE
WHITE
WHITE
WHITE
WHITE
WHITE
RED
INDICATOR PCB
EZ-002YHSE-D
CHECKER
5V
LOUVER
RED
ORANGE
YELLOW
PINK
BLUE
RED
WHITE
CN7-1
CN7-3
CN7-2
BLACK
FAN MOTOR
CN101-1
CN101-5
CN101-3
BLACK
YELLOW
WHITE
ORANGE
ORANGE
FAN CAPACITOR
POWER TRANSFORMER
EZ-030HSE-T
PRAIMARY
SECONDARY
PURPLE
RED
RED
PURPLE
THERMAL FUSE
THERMAL FUSE
GRAY
GRAY
POWER SUPPLY PCB
EZ-002YHSE-P
GREEN
BLUE
WHITE
BLACK
RED
BLUE
BROWN
TO EARTH TERMINAL
GREEN / YELLOW
TERMINAL BOARD
POWER SOURCE
220 / 240V
50Hz
OUTDOOR UNIT
BROWN
WHITE
UL1061 AWG26 x 8
CN6-8
CN6-5
CN6-4
CN6-2
CN6-3
CN6-1
CN6-6
CN6-7
WHITE
WHITE
WHITE
WHITE
WHITE
WHITE
BLUE
12V
12V
12V
5V
12V
HEATING TEMPERATURE
CORRECTION 2
HEATING TEMPERATURE
CORRECTION 1
CONTROLLER PCB ASSEMBLY (MAIN PCB)
EZ-0030AHSE-C (F)
uPD780024ASGB-X25-8ET
I C 1
12V
5V
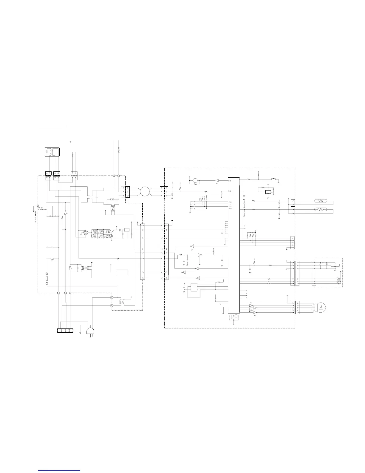
Model : ASH7USBCW
C1
0.1 <F>
R1 10K
<1/10W>
5V
R3,R34,R5,R35
10K <1/10W>
JP1
JP1
JP4
JP3
JP2
R2 1.0K
<1/10W>
R14 10K
<1/10W>
C2
0.1
<F>
CN8
S3P-VH
5V
BZ1
PKM13EPY-4000
Q2
DTC124EUA
R30 1.0K
<1/10W>
C21
0.1
<F>
C25
0.1
<F>
C22
0.1
<F>
R24 390
<1/10W>
R24 390
<1/10W>
R25 390
<1/10W>
5V
R20 - R23
10K <1/10W> x 4
R19 10K
<1/10W>
C16
1000P
<R>
R18 47
<1/10W>
5V
330 <1/10W>
330 <1/10W>
330 <1/10W>
R17
R16
R15
12V
X1
CST8.38MHz
12V
IC4-1 uLN2003
IC4-4 uLN2003
IC4-3 uLN2003
IC4-2 uLN2003
CN5 53325-0510
CN4 B6B-PH-K-S
5V
X201
C202
0.1
<F>
C201
47/10V
CN201
CN1
B5P-SHF-1AA
W106
W105
CN101
B3P5-VH-B
SSR101
G3MC-201PL-VD
VA102
470V
C104
0.1
L101
SS11V-10062
D101
S1VB20
12V
C108
0.1
<F>
C106
2200
/25V
+
D102
1SR139
IC101
7805
D103
1SR139
12V
C110
4700P
G3MB-202P UTU
W102W104W103
FH101
FH102
F101
T
3.15A 250V
C103
0.1
VA101
470V
VA103
470V
C102
4700P
C101
4700P
CR101 120/0.2
K101
G5NB-1
UL1015 AWG14
UL1015 AWG22
UL1015 AWG22
UL1015 AWG22
UL1015 AWG22
UL1015 AWG22
BLUERED
BLACK
CN105-8
CN105-7
CN105-6
CN105-5
CN105-4
CN105-3
CN105-1
CN105-2
I
O
G
3
2
1
B Z
12
5
2
3 1
Q1
DTC124EUA
Q3
DTC124EUA
2
1
3
11 6
IC4-7 uLN2003
IC4-6 uLN2003
IC4-5 uLN2003
5V
5V
R33 10K
<1/10W>
C11
0.1
<F>
CN6
B8B-PH-K-S
5V
IC2
BR93LC46
EEPROM
R12 10K
<1/10W>
5V
R8 10K
<1/10W>
C9
0.01
<R>
C7
10/
25V
+
R7 4.7K
<1/8W>
R6 1.0K
<1/8W>
C8
0.1
<F>
UL1061 AWG26 x 6
UL1061 AWG26 x 5
CN5-6
CN5-7
CN5-8
CN5-9
CN5-10
CN4-6
CN4-4
CN4-5
4
5
6
3
2
1
CN4-3
CN4-2
CN4-1
GP1UM261RK
GND
VCC
DATA
D201 SLR-325 <VC>
D203 SLR-325 <DC>
D202 SLR-325 <MC>
CN1-1
CN1-5
CN1-4
CN1-3
CN1-2
8
9
1
3
2
4 13
14
16
15
2
33
32
X1 X2
12V
K103
G4A-1A-E-PS
CN105
PHR-8
CN102
B2P3-VH-B
CN103
CN104
B2B-XASK-1-A
B2B-XH-AM
CN102-3
CN102-1
CN104-1
CN104-2
CN103-2
CN103-1
(103
)
UL1015 AWG20
UL1015 AWG20
7.0
F M
K 101
VCC
D0
TEST
GND
CS
SK
D1
NC
7
3
2
1
8
4
6
5
10
7
8
28
24
25
29
19
13
38
12
11
35
7
6
5
52
51
50
49
48
47
46
45
10
20
26
23
22
30
27
43
16
15
14
37
44
9
34
21
4
36
1
2
3
42
41
40
39
17
18
31
P57
RESET
P11
P10
XT2
P25
P36
P03
P35
P34
P00
P56
P55
P54
P47
P46
P45
P44
P43
P42
P41
P40
AVDD
VDD0
VDD1
AVREF
P12
P13
XT1
VSS0
VSS1
AVSS
P53
P01
P50
P51
P52
P73
P72
P71
P70
P23
P24
I C
2005.02.10 7
N L 3 4

Related product manuals