EasyManua.ls Logo

Georgia Amendments Prescriptive Deck Details - Ledger Attachments; Siding and Flashing

Default Icon
27 pages
Print Icon
To Next Page IconTo Next Page
To Next Page IconTo Next Page
To Previous Page IconTo Previous Page
To Previous Page IconTo Previous Page
Loading...
05/23/12 Georgia Amendments- Prescriptive Deck Details Sheet 9 of 22
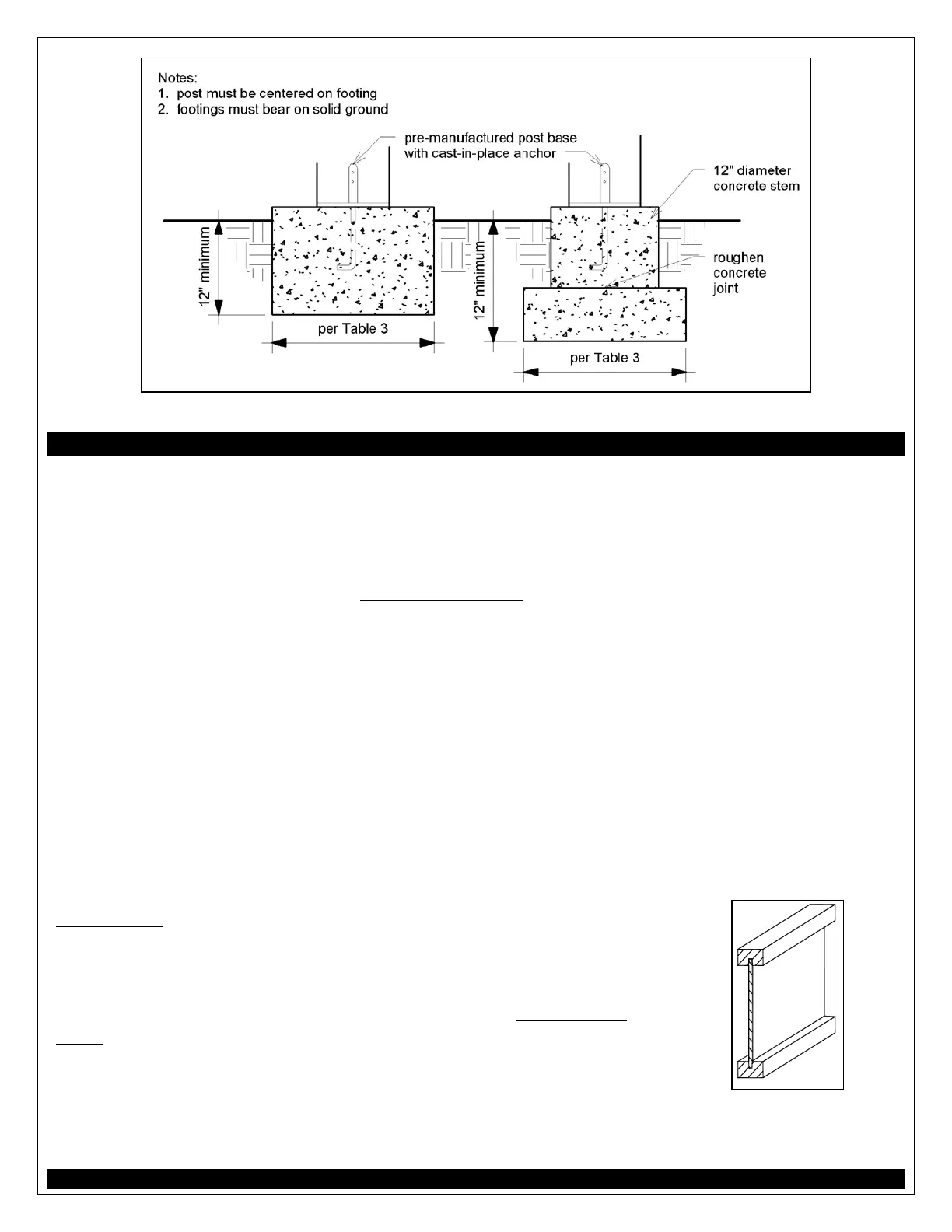
FIGURE 12: TYPICAL FOOTING OPTIONS
LEDGER ATTACHMENTS
Ledger boards shall be attached to the existing house in accordance with the requirements below.
The depth of a ledger board shall be greater than or equal to the depth of the joists.
The attachment shall be in accordance with FIGURE 14.
The band board of the existing structure shall be capable of supporting the new deck. If this
cannot be verified or conditions at the existing house differ from the details herein, then a free-
standing deck is required. See
Free-Standing Decks on Sheet 14.
Compliance with all the requirements herein is critical to ensure the safety and structural
stability of your deck.
Siding and Flashing
Flashing shall be installed in accordance with the requirements below.
The exterior finish, i.e., house siding, must be removed prior to the installation of the
ledger board.
Continuous flashing with a drip edge, as shown in FIGURE 14, is required at the ledger board when
connected to a wood band board.
Flashing shall be composed of copper (attached using copper nails only), stainless steel, UV
resistant plastic or galvanized steel coated with 1.85 oz/sf of zinc (G-185 coating).
Flashing at a door threshold shall be installed so as to prevent water intrusion from rain or melting
ice and snow.
Wood I-Joists
Many homes constructed with wood I-joists, as shown in FIGURE 13, have a
1" or thicker engineered wood product (EWP) band board capable of
supporting a deck; see FIGURE 14. If a minimum 1" EWP or 2x band board
is not present, then a free-standing deck is required. See
Free-Standing
Decks on Sheet 14 for more information.
FIGURE 13: WOOD
I-JOIST PROFILE