EasyManua.ls Logo

Glastender ST24 - ST48, ST60, ST72 and ST96

Glastender ST24
16 pages
Print Icon
To Next Page IconTo Next Page
To Next Page IconTo Next Page
To Previous Page IconTo Previous Page
To Previous Page IconTo Previous Page
Loading...
5
Glastender, Inc. • 5400 North Michigan Road • Saginaw, MI • 48604-9780
800.748.0423 • 989.752.4275 • Fax 800.838.0888 / 989.752.4444 • www.glastender.com
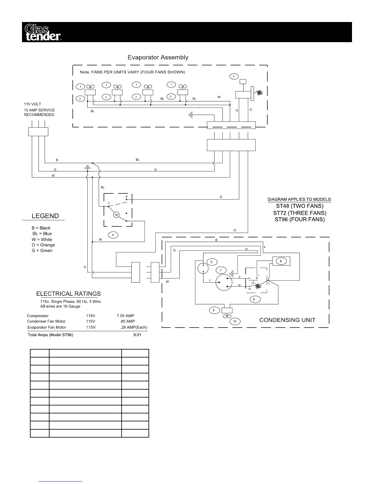
Wiring diagram For modelS ST48, ST60, ST72, and ST96
ITEM DESCRIPTION PART #
1 EVAPORATOR FAN BLADE 06001395
2 EVAPORATOR FAN MOTOR 06001445
3 THERMOSTAT 06001405
4 DEFROST TIMER 06001397
5 OVERLOAD 07000128
6 CAPACITOR 06001380
7 COMPRESSOR, 1/3 HP, R22 06001443
8 START RELAY 07000168
9 CONDENSER FAN MOTOR 08000085
10 CONDENSER FAN BLADE 08000081
ST60 (TWO FANS)

Related product manuals