EasyManua.ls Logo

GMC Acadia 2011 - Page 275

GMC Acadia 2011
468 pages
Print Icon
To Next Page IconTo Next Page
To Next Page IconTo Next Page
To Previous Page IconTo Previous Page
To Previous Page IconTo Previous Page
Loading...
Black plate (13,1)
GMC Acadia/Acadia Denali Owner Manual - 2011
Driving and Operating 9-13
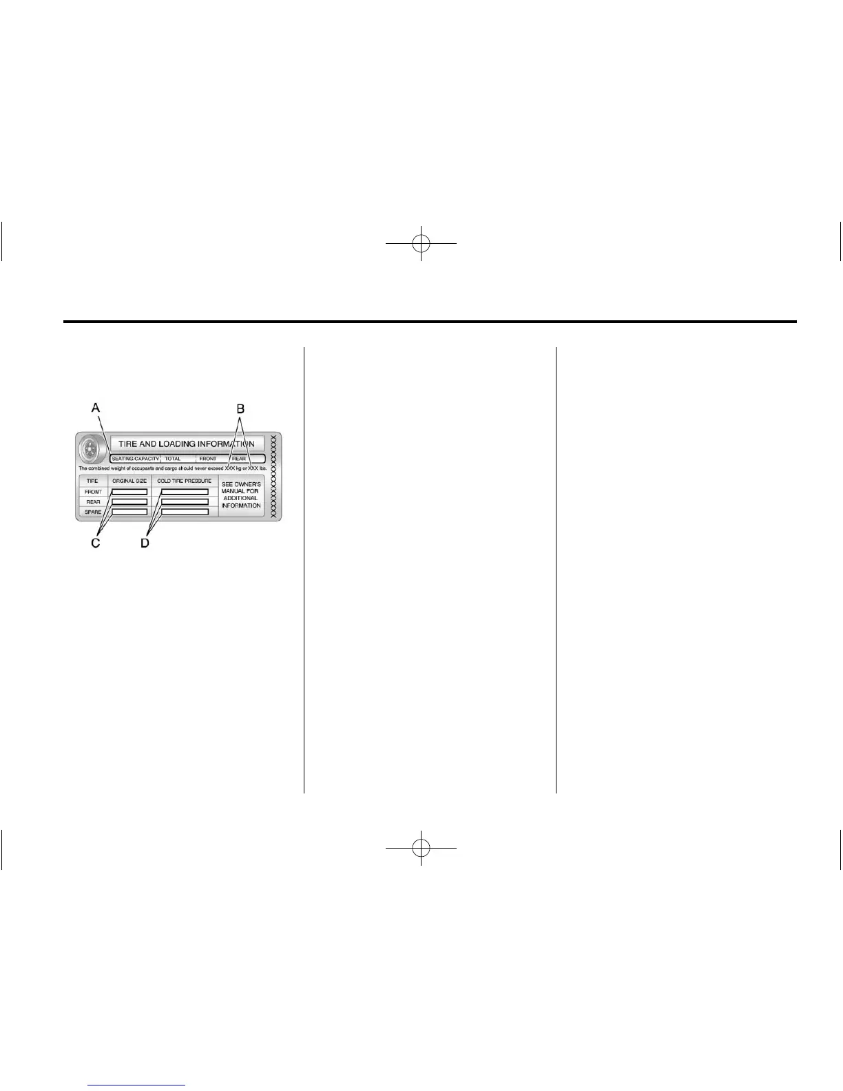
Tire and Loading Information
Label
Example Label
A vehicle specific Tire and
Loading Information label is
attached to the center pillar
(B-pillar) of your vehicle. With
the driver's door open, you will
find the label attached below the
door lock post (striker). The tire
and loading information label
shows the number of occupant
seating positions (A), and the
maximum vehicle capacity
weight (B) in kilograms and
pounds.
The Tire and Loading
Information label also
shows the size of the
original equipment tires (C)
and the recommended cold
tire inflation pressures (D).
For more information on tires
and inflation see Tires
on
page 1039
and Tire Pressure
on
page 1046
.
There is also important loading
information on the vehicle
Certification/Tire label. It tells
you the Gross Vehicle Weight
Rating (GVWR) and the Gross
Axle Weight Rating (GAWR)
for the front and rear axle.
See Certification/Tire Label
later in this section.
Steps for Determining Correct
Load Limit
1.
Locate the statement
The combined weight of
occupants and cargo should
never exceed XXX kg or
XXX lbs on your vehicle's
placard.
2. Determine the combined
weight of the driver and
passengers that will be
riding in your vehicle.
3. Subtract the combined
weight of the driver and
passengers from XXX kg
or XXX lbs.

Table of Contents