EasyManua.ls Logo

Goodman ARUF - AWUF Wiring Diagram (31-32)

Goodman ARUF
42 pages
Print Icon
To Next Page IconTo Next Page
To Next Page IconTo Next Page
To Previous Page IconTo Previous Page
To Previous Page IconTo Previous Page
Loading...
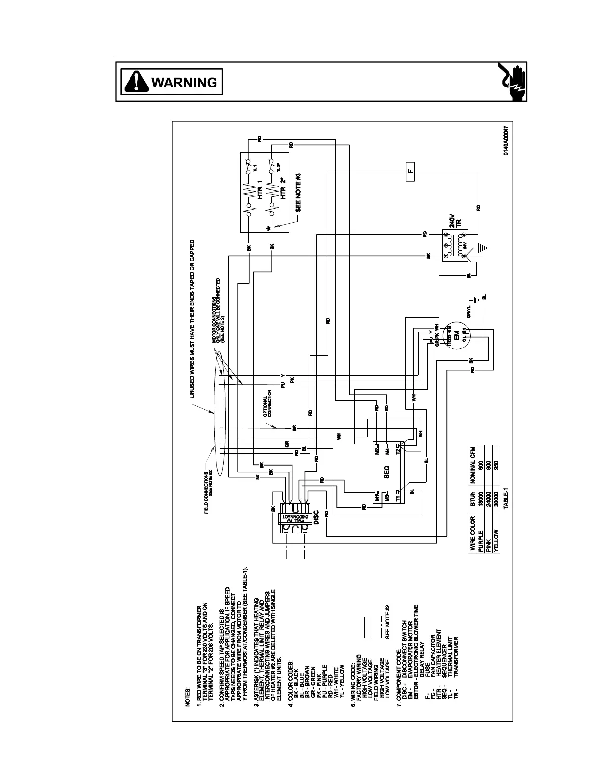
HIGH VOLTAGE!
DISCONNECT ALL POWER BEFORE SERVICING OR INSTALLING THIS
UNIT. MULTIPLE POWER SOURCES MAY BE PRESENT. FAILURE TO
DO SO MAY CAUSE PROPERTY DAMAGE, PERSONAL INJURY OR DEATH.
WIRING DIAGRAMS
41
Wiring is subject to change. Always refer to the wiring diagram on the unit for the most up-to-date wiring.
AWUF[31-32]**

Other manuals for Goodman ARUF

Related product manuals