EasyManua.ls Logo

Grain Comfort Plus - Installation Clearances; Minimum Clearance Specifications

Grain Comfort Plus
30 pages
Print Icon
To Next Page IconTo Next Page
To Next Page IconTo Next Page
To Previous Page IconTo Previous Page
To Previous Page IconTo Previous Page
Loading...
Venting and Exhaust Installation can be done either through the wall with a supplied vent kit
from Grain Stoves Inc. (See figure 2 and/or 3) or into an existing factory built UL 103 or
masonry chimney.
This Grain Stove Plus must be installed in accordance with this manual and local code. In the
absence of any local codes, follow the current edition of the NFPA-211 (in the USA) and the
CSA-B365 (in Canada). Special methods are required when passing through a wall or ceiling.
See instruction and building codes.
Installations should have two people, as the unit is heavy.
BEFORE MAKING ANY ALTERATIONS - Observe the location of electrical
outlets so that you do not cut into any live wires. DO NOT CUT through a wall stud. If
it is determined that wires or a wall stud is in the way, re-measure and reposition the unit.
If this stove/appliance is not properly installed in a house, there is a risk of fire. For your
safety, follow the installation directions. Contact local building or fire officials about
restrictions and installation inspection requirements specific to your area.
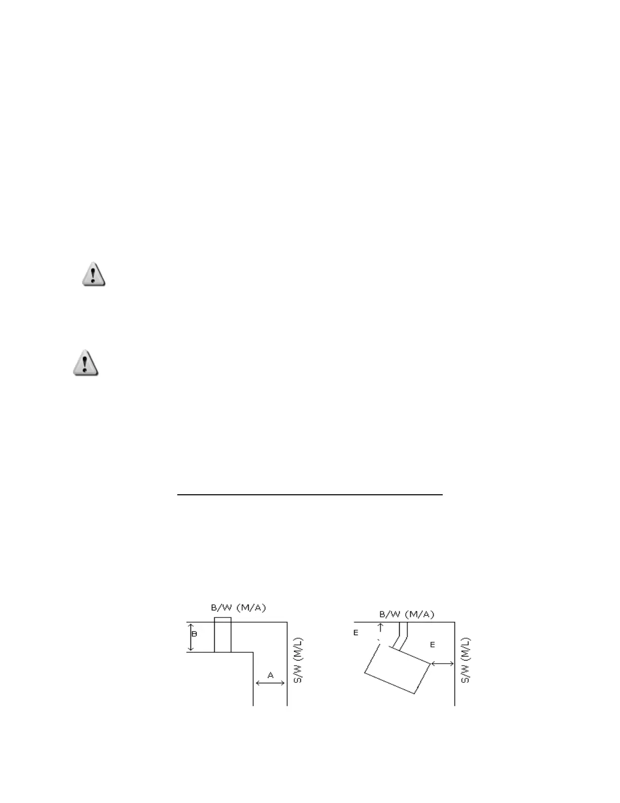
INSTALLATION CLEARANCES
Your new Grain Comfort Plus should be installed in a location that takes full advantage of its
heating capabilities. A location that will give the best airflow from the front of the unit to the
remainder of the house is ideal.
Minimum Clearances: Figure 1
7