EasyManua.ls Logo

GRE KPCOR46 - Page 36

GRE KPCOR46
68 pages
Print Icon
To Next Page IconTo Next Page
To Next Page IconTo Next Page
To Previous Page IconTo Previous Page
To Previous Page IconTo Previous Page
Loading...
36
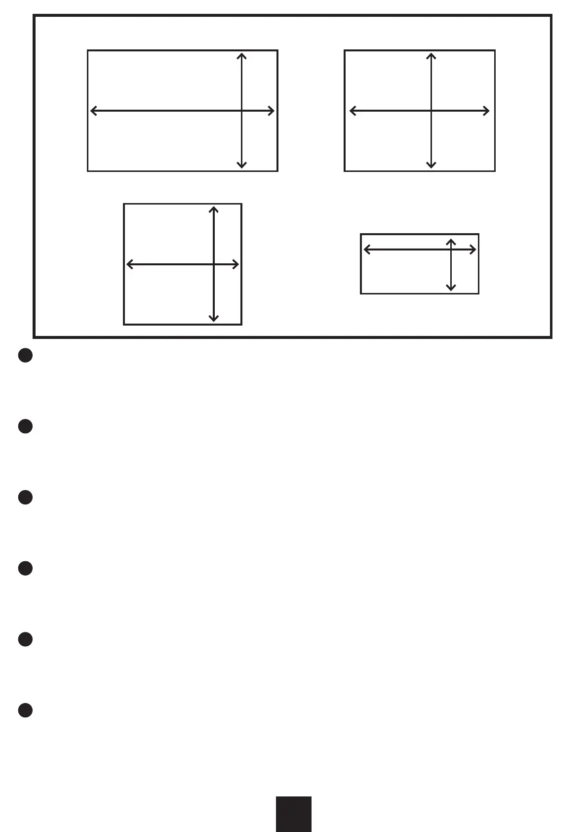
INTERIOR DIMENSIONS:
Once the oor is properly leveled, the ground will be marked with the lines where the inside face of the panels of the swimming pool will be
supported.
It is time to check the measurements.
If not, the exercise needs to be performed again.
WYMIARY WEWNĘTRZNE:
Po odpowiednim wypoziomowaniu powierzchni na podłożu zostaną wyznaczone linie, na których będą opierać się wewnętrzne powierzchnie
paneli basenu.
Następnie należy sprawdzić wymiary.
Jeśli nie są one prawidłowe, czynności należy wykonać ponownie.
INTERIOR DIMENSIONS:
Once the oor is properly leveled, the ground will be marked with the lines where the inside face of the panels of the swimming pool will be
supported.
It is time to check the measurements.
If not, the exercise needs to be performed again.
INTERIOR DIMENSIONS:
Once the oor is properly leveled, the ground will be marked with the lines where the inside face of the panels of the swimming pool will be
supported.
It is time to check the measurements.
If not, the exercise needs to be performed again.
DIMENSIUNI INTERIOARE:
După ce solul este nivelat corespunzător, se va marca terenul cu liniile pe care se vor sprijini feele interioare ale panourilor piscinei.
Este timpul să vericăm măsurătorile.
În caz contrar, exerciiul trebuie să e efectuat din nou.
INRE DIMENSIONER:
När golvet är ordentligt planat markeras marken med de linjer där insidan av poolens paneler stöds.
Det är dags att kontrollera mätningarna.
Om inte, måste övningen utföras igen.
560cm 420cm
280cm
280cm
280cm
280cm
280cm
140cm
KPCOR60L
KPCOR60
KPCOR28
KPCOR46
KPCOR2814
PL
EN
CS
SK
RO
SV

Related product manuals