EasyManua.ls Logo

Gree Cozy GWC09MA-K1NNA3A

Gree Cozy GWC09MA-K1NNA3A
114 pages
To Next Page IconTo Next Page
To Next Page IconTo Next Page
To Previous Page IconTo Previous Page
To Previous Page IconTo Previous Page
Loading...
99
99
9
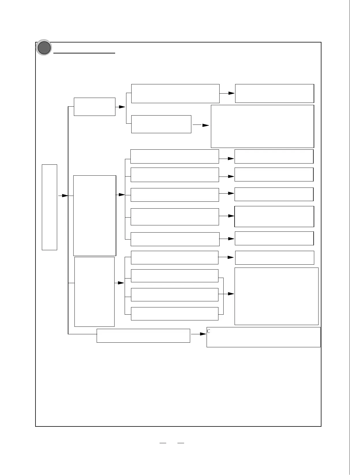
Th e bre a k e r tr i p s at onc e when it
is set to "ON".
Measure
insulation resistance to ground to see
if there is any leakage.
Trip
of breaker or blow
of fuse
The
breaker trips in few minutes
when it is set to "ON"
Ch e ck powe r su pply ci r cuit .
Check
if the plug is properly plugged in and
make the loose contact firm.
Chan ge
c ont rol ler fuse
Check remote controller
Chan g e b a tt e r i e s
Po wer
vol tag e i s too low
Re m o t e
co n t roller ma l f u nction
Re c eive r
i s broke n
Co n t r o l l er is br o k e n
Rece iv er loose o r poo r conne ct ion
No power
Fuse of control le r burnt out
Re mot e con tro lle r is shor t of powe r
Power plug is not well plugged in and poor con-
nection
Fasten the wiring; measure the output
v o l t a g e
o f t h e t r an sf or me r , i f i t i s
incorrect,
change the transformer
p
u
t
ra
ts
ton
na
c
reno
i
tidn
oc
riA
The air conditioner
does not react after
it is powered ( after
the plug is inserted,
the buzzer does
not sound and the
remote startup has
no res po nse )
The remote controller
does
not receive
sig na ls
(after it is
powered,
the buzzer
will
sound, unless it
has
malfunction)
The circuit or the part of the air conditioner has
malfunction. They heat and break the insulation
and lead to short circuit or creepage. Measure
the insulation resistance or eliminate the malfunc-
t i on o n e b y on e. If t he br e ak e r it se lf ha s
malfunction,
then replace the breaker.
The transformer connection is loose or has bad
contact
or the transformer has malfunction
First, press the manual switch button AUTO,
if
there is no response,check based on the
abo
ve methods. If it runs normally after
pressing
the button,check again whether the
installation
position and the connection wire
of
the reception head is correct. If it is
correct,then
replace the receiver or the re-
mote controller.
heck the voltage. If it is lower than 10£¥ of the rated voltage, check the
cause, improve the power supply condition and add the stabilized voltage
power supply.
110
Failure and analysis
Note: When replacing the controller, make sure insert the wire jumper into the new controller, otherwise the
unit
display C5.

Related product manuals