EasyManua.ls Logo

Gree GKH12K3FI - Page 60

Gree GKH12K3FI
186 pages
To Next Page IconTo Next Page
To Next Page IconTo Next Page
To Previous Page IconTo Previous Page
To Previous Page IconTo Previous Page
Loading...
U-Match Series DC Inverter Service Manual
57
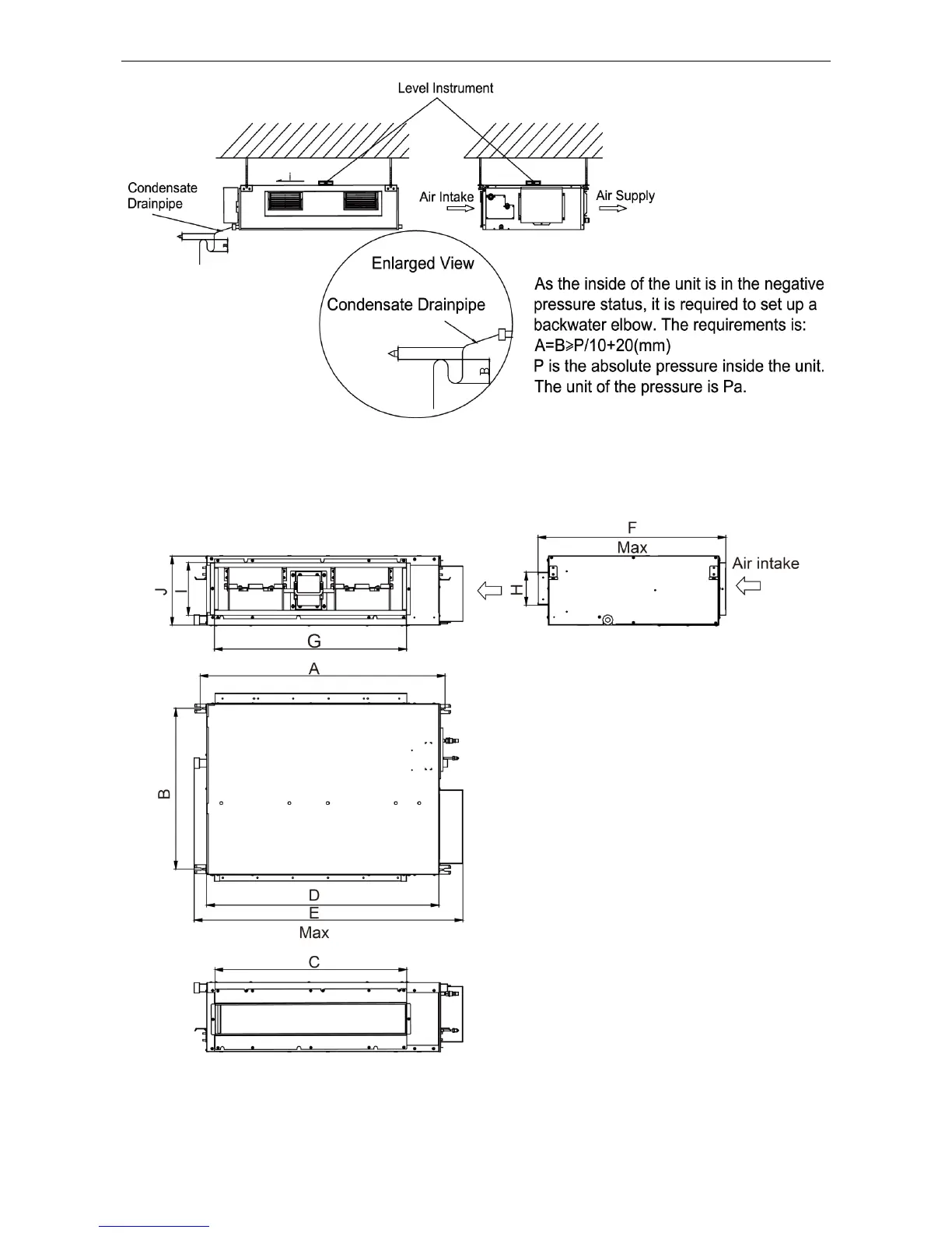
Figure 3-1-5
1.1.4 Dimension Data
For the units: 09~18k, 48k, 60k

Table of Contents

Other manuals for Gree GKH12K3FI

Related product manuals