EasyManua.ls Logo

Gree GMV-ND28ZA/A-T

Gree GMV-ND28ZA/A-T
25 pages
To Next Page IconTo Next Page
To Next Page IconTo Next Page
To Previous Page IconTo Previous Page
To Previous Page IconTo Previous Page
Loading...
Multi Variable Air Conditioners Concealed Floor Standing Unit
5
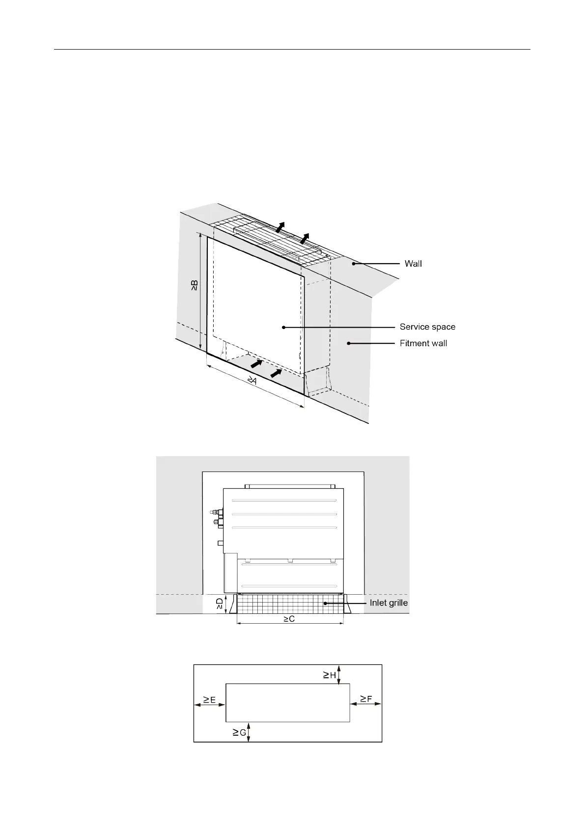
(6) In order to make sure the space for maintenance, when the indoor unit was concealed
installation, according to the dimension as shown in Fig.3.2.1.
(7) Installation requirements of air inlet grille is as shown in Fig.3.2.2.
(8) Pipe connection space shall be reserved around the unit, as shown in Fig.3.2.3.
(9) Keep the unit away from heating source, inflammable gas or smoke.
(10) Indoor unit, outdoor unit, power cord and electric wire should stay at least 1m from the TV set
and radio. Otherwise, these electrical appliances may have image interference and noise. (Even
if the distance is 1m, when there is strong electric wave, noise may still occur.)
Fig.3.2.1
Fig.3.2.2
Fig.3.2.3

Related product manuals