EasyManua.ls Logo

Gree GMVVQ224WM/C-X - Page 14

Gree GMVVQ224WM/C-X
79 pages
Print Icon
To Next Page IconTo Next Page
To Next Page IconTo Next Page
To Previous Page IconTo Previous Page
To Previous Page IconTo Previous Page
Loading...
GMV Heat Recovery DC Inverter VRF
10
with sufficient length.
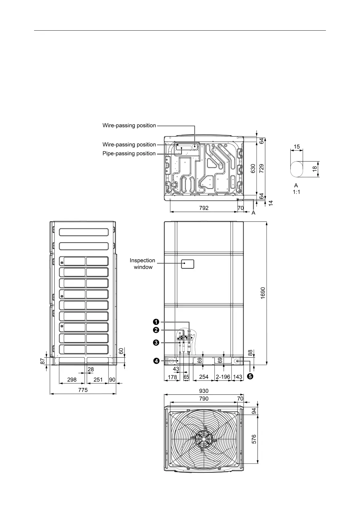
3.2 Outdoor Unit Installation
3.2.1 Product Size Drawing
The product photos are only for reference. Please refer to the actual product.
Outline and Physical Dimension of GMV-VQ224WM/C-X, GMV-VQ280WM/C-X, GMV-
VQ335WM/C-X unit.
Unit: mm
Fig.3.2.1

Related product manuals